查看完整案例


收藏

下载
项目概况
项目名称 / GLEN BAR
建筑面积 / 220平方米
项目地址 / 郑州市
· 正弘城
设计公司 / 徽宗设计研究室
主案设计 / 姚清轩
设计总监 / 侯豫
设计团队 / 李荣静 徐莉莉 张千千 刘明帅 郭芝良 张建
撰文 / 姚清轩
摄影 / 李研彤 王小悦
主要用材 / 金属网 乳胶漆 木饰面贴皮 金属铜 瓷砖 大理石 不锈钢 氟碳漆 皮革 毛毡板 壁画竖百叶 青砖
设计日期 / 2018年 8月
施工日期 / 2018年12月下旬-2019年2月初
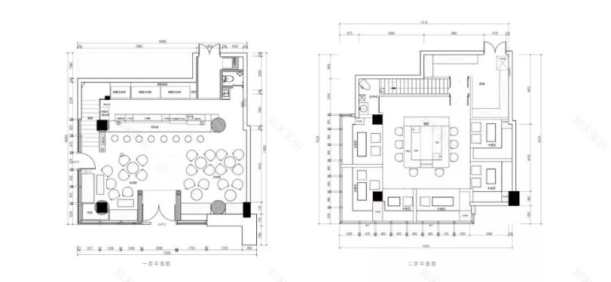
平面 / DESIGN
空间 / DESIGN
ENTRANCE
BAR COUNTER 1/F
STAIR
BAR COUNTER 2/F
夜来风吹墙角
你打开门
人群熙熙攘攘的在你来我往
一排莫高窟佛陀们望着这些你来我往
静谧但却沉醉
看样子是定居这里了
西方世界去不成了
奋斗 受苦 佛也怕
不如在这里 熙熙攘攘
看透人世百态 然后立地成佛
亭台楼阁 独上二楼
又是一派繁华景象
神圣的拱
亚特兰蒂斯的绿光
只是东方的亚特兰蒂斯
海面是日本的神奈川 海王在上面倒着冲浪
常见人在那里庆祝失败
所谓无底深渊
下去
也是前程万里
徽宗若有所思
有时 人生真不如一行兰亭序
又时 兰亭序 真不如一杯威士忌
END
徽宗设计研究院 HUIZONGDESIGN
徽宗空间设计研究室创立于2014年,是一家立足于中国郑州的多元化建筑设计公司。徽宗设计提供国际化的建筑、室内、整体规划以及平面设计服务。公司目前的项目分布在很多不同的城市,拥有来自全国各地的员工,不同文化背景组成了徽宗的设计团队,正是团队的差异独特性增强了我们的设计理念:以全球化的观念结合多元、重叠的设计理念来创造一个新的建筑范例。
徽宗设计始终认为研究是设计的一种有力工具,因为每个项目都具备有其特有的背景。对规划运作、地点、功能和历史等进行细致深入的研究是创造严谨作品不可或缺的要素。在研究的基础上,徽宗设计致力于建筑与经验、细节、材料、形状及灯光的积极互动,而不是单纯地遵照模式化刻板风格。每个项目背后的最终成功之处都是通过建筑本身外观形象所体现出来的意义而得到淋漓尽致的体现。
客服
消息
收藏
下载
最近

































