查看完整案例


收藏

下载
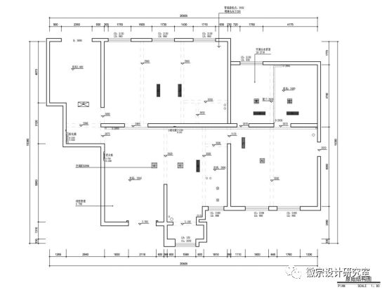
项目概况/
项目名称/ 一得心
建筑面积/ 253平方米
项目地址/ 郑州市郑东新区商务内环路西三街
设计公司/ 徽宗设计研究室
主案设计/ 姚清轩
设计团队/ 朱琳 何微 李荣静 刘明帅
材料/ 地砖 文化石 马来漆 乳胶漆 钢板
木饰面 软包
设计日期/ 2017年7月
施工日期/ 2017年8月~10月
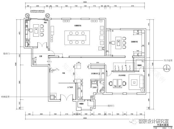
一得心,一个室外桃源般优雅的地方,竹青水静,曲径通幽。在东区这样喧嚣的商业CBD,一得心的位置却难得的宁静。这里收藏的有很多珍贵文物珠宝器皿。虽然器物珍贵,但这里却充满了质朴素雅。
入门的玄关之处
/
如瀑布一般的布帘,首先让人感受到清风徐来的宁静与传统文化的意蕴,推拉式的玄关门布局,在风水的基础之上将整个入户空间做足了隐蔽感。把每一位客人都带入到这样的氛围之中,并慢慢展开空间的叙述。
信步玄关,一尊古老的雕塑,于光与影,仪式感相映而成。
珠宝展示区/
进入空间之内便是重点的珠宝展示区域。为了更加体现珠宝的质感,在灯光和材质上采用了明暗对比,用3500K和4000K的灯光源来不同处理,弱化走廊氛围,突出珠宝产品的质感。除此之外,充分做足了仪式感和历史感,把珠宝衬托的更有韵味。
在蓦然的某个节点,恍然之间便有一处氛围感,于珠宝的晶莹,与枯山水的宁静,与墙面纹理的随风而逝,似乎这个空间,在与光阴对话之中,让你驻足的不仅仅是空间,更是一种内心的对白与情怀。
空间小景/
漫步在一得心的走廊,你会发现很多小景, 质朴充满年代感并且具有玩味儿,亦或者你会觉得这里不仅仅只是一个珠宝店,更像是一个有年代感的古董收藏店,这里似乎有年少的瞬间和充满历史的记忆。
慢慢进入空间深处,一扇中韵古朴的大门和新结构的墙面似乎是在对白,亦似乎是在博弈,隐隐约约你会听到竹叶随风唦唦而过,更是让这个空间有了故事。于我与你,光影交错。饮一杯追溯的酒,静好。
推门进入首先是古朴的檀香味,但不同的是你会发现这里如同深藏多年的隐士雅居一般,老板非常的喜欢会客待友,所以专门设计了这样的一个空间。方圆之间,谈笑风生。
在这里,有一方天地,你可以端坐,只是为了沉寂心灵。光束随着顶面与地面深色系的交融里,犹如恍然隔世。
徽宗设计研究院 HUIZONGDESIGN
徽宗空间设计研究室创立于2014年,是一家立足于中国郑州的多元化建筑设计公司。徽宗设计提供国际化的建筑、室内、整体规划以及平面设计服务。公司目前的项目分布在很多不同的城市,拥有来自全国各地的员工,不同文化背景组成了徽宗的设计团队,正是团队的差异独特性增强了我们的设计理念:以全球化的观念结合多元、重叠的设计理念来创造一个新的建筑范例。
徽宗设计始终认为研究是设计的一种有力工具,因为每个项目都具备有其特有的背景。对规划运作、地点、功能和历史等进行细致深入的研究是创造严谨作品不可或缺的要素。在研究的基础上,徽宗设计致力于建筑与经验、细节、材料、形状及灯光的积极互动,而不是单纯地遵照模式化刻板风格。每个项目背后的最终成功之处都是通过建筑本身外观形象所体现出来的意义而得到淋漓尽致的体现。
2017年国际空间设计大赛——
原点设计金奖
”公共空间设计金奖,购物空间设计金奖和别墅空间设计金奖。
客服
消息
收藏
下载
最近






















