查看完整案例


收藏

下载
房屋位置丨广州 · 天河区 东河苑
面积户型丨60 平方米
主要材质丨瓷砖、木材、涂料
SPACE...
当我们走进房屋,探索空间时:
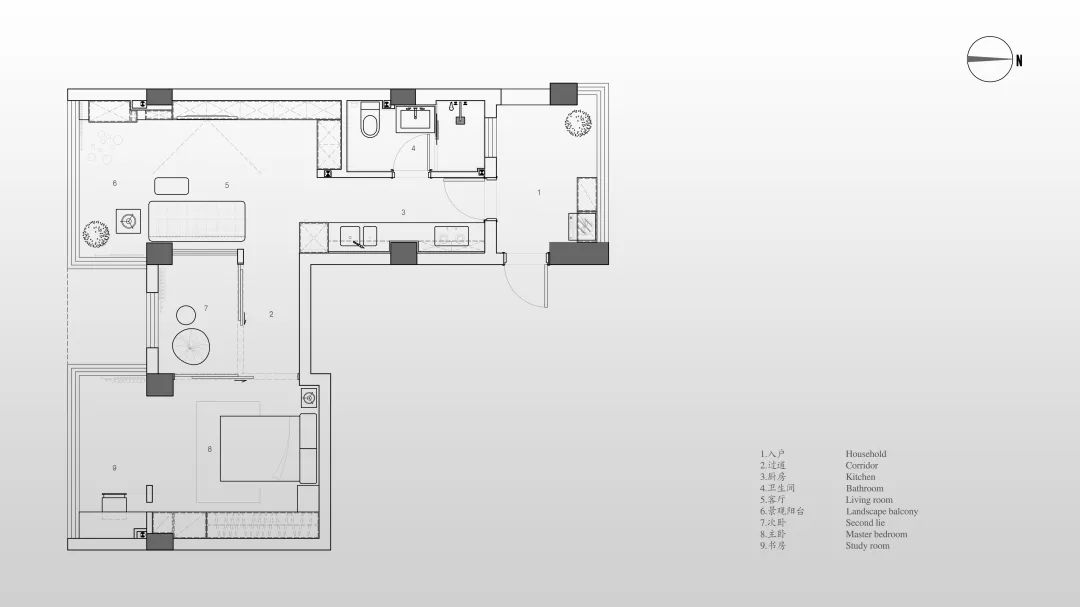
① 原始结构为两室一厅一厨一卫的空间;重新梳理空间后,结合生活习惯满足住屋需求。
② 因房屋所处于顶楼的位置,L 型空间将 2 个朝南的阳台与朝北的入户窗对流,卧室之间都有单独的窗户,顶层的优势使视野能够远望到很好风景,白天的光线也充足。
③ 在处理空间关系的时候,保留多个窗户的优势,突出窗外景色,室内则是温柔的居家氛围,打破原有房屋封闭式的结构。
原始结构图
方案设计图
NOW...
现在,家的样子
“环境、人、空间”是我们设计中绕不开的重要因素!
现代简约的风格,以低饱和色与自然材质为主,不做过度装饰,空间以白调和灰调为主色调,木色调与黑色调为辅色调。
❐厨房 | Kitchen
置换原有厨房的位置,利用原有进门细长的走廊,实现空间上的双重使用。❐客厅 | Living room
客厅大面积的电视柜收纳,客餐厅一体的设计,解决空间的拥挤浪费的问题。空间的原始格局被打通,获得更充足的空间光线外还有生活动线,同时也释放出最大限度的流动性。
合理的规划统筹后,形成一个完整的体系便能将设计、人与空间关联融合。
❐ 过道 | Aisle
优化过的过道空间通透性、采光性都变得更好,同时过道也兼顾画廊的作用,起到日常的装饰效果。
❐ 次卧&休闲区 | Secondary Bedroom&Leisure Area
次卧是通过两个移动门的开合,划分主卧室的私密性与敞开性。可以放下一张 2000mm 长的沙发床,可提供年轻业主偶尔回家后的居住问题。
是次卧,也可以是工作间,空间的中枢,发散,井然有序;移动门,成为空间的关键要点,收起为封闭,开启即为开放。
❐主卧 | Master bedroom
主卧是长辈常居的空间,打破传统封闭式的砖墙结构,以两个移动门的开合代替砖墙的隔断。
将主卧原有的床位置做了调换,解决日常的收纳,也将原有阳台的空间纳入到主卧,面朝窗户与露台。
生活是安逸、规律、温暖的;与家人相互印证家庭生活,给予彼此无须解释的肯定和巨大的平静。
E N D
———————— · ————————
ABOUT DESIGNRE
关于项目
项目地点:广东省广州市
项目名称:东河苑
空间面积:60㎡
设计单位:奕米設計工作室
主体施工:奕米設計施工组
Project Name:DONGHEYUAN
Roject Location:Guangzhou, China
Design Area:60㎡
Design Firm:YIMI DESIGN STUDIO
Main Body Construction: YIMI CONSTRUCTION TEAM
获奖荣誉
AWARDS HONOR
向上滑动阅览
百度馨居奖“年度设计师十佳”奖
金腾奖“年度餐饮空间设计大奖”
第十届筑巢奖“普通户型设计大奖”
年第十届筑巢奖“商业空间设计大奖”
40UNDER40 中国(广州)设计杰出青年
包豪斯现代设计奖·金奖
第五届“包豪斯奖”国际设计大赛办公类优秀奖
第五届“包豪斯奖”国际设计大赛住宅类银奖
CBDA 中国装饰设计奖铜奖
中国设计品牌办公空间银奖
中国设计品牌办公空间媒体特别关注奖
中国国际设计周“金尺杯”办公类优秀奖
中国国际设计周“金尺杯”住宅类优秀奖
中国(广东)住宅设计精英榜 100 强
金腾奖 TOP100
40UNDER40 中国(广州)设计杰出青年
中国建筑装饰金鹰设计大赛金奖
第八届“筑巢奖”优秀奖
国际“艾鼎奖”优秀奖
第六届中国“艾舍奖”金奖
了解更多
YMDS
原创设计?
欢迎分享至朋友圈
Welcome toshare tofriends
奕米設計工作室
,侵权必究
Reproduced please specify
"YIMI DESIGN STUDIO"
Rights Reserved
-联系 YIMI-
广州东方国际商业广场二楼东一街 205-209 室
客服
消息
收藏
下载
最近



























