查看完整案例


收藏

下载
#前言| PREFACE#
设计之初探索原空间不同的角度,希望通过设计来阐述其内在诸多的复杂可能性,挖掘更多不同的生活方式,探讨全新的生活方式及室内空间动线,让新的空间与其使用者产生新的情感共鸣。
———————— design with heart,simple life ————————
#ONE / 1 D3SIGN 设计#
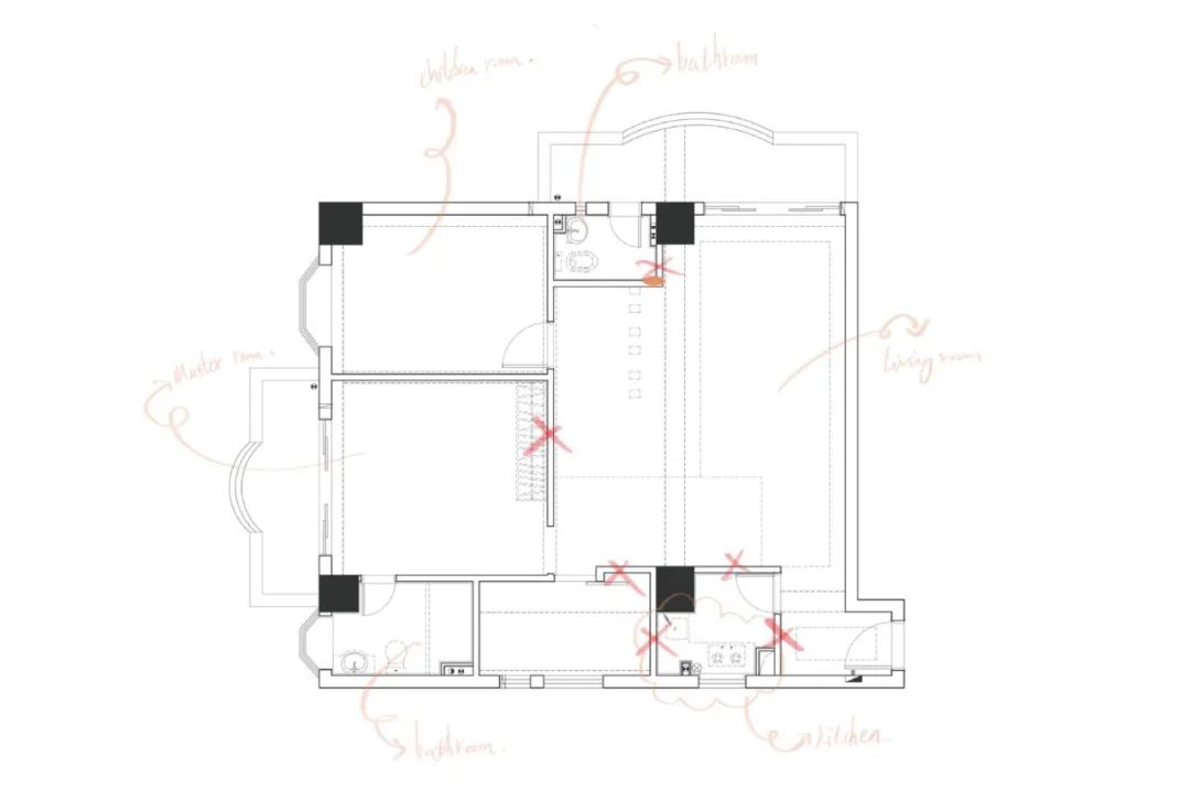
「改造前」
▪️此项目位于广州市荔湾区,项目面积为 135㎡,普通平层结构。
▪️户型结构厨房与公卫卫生间的布局相对狭小,利用率不高,所以在设计初期的考虑也着重考虑到两个空间新的一个可能性,客餐厅与原有卧室区域进行一个对换改动的同时也将原有的三室区域也释放出一个小房间区域给到开放式厨房结合客餐厅,从而也使得公共动线区域也相对开阔的同时动线也呈回字形动线。
▲ 原始结构图/Original structure diagram
「改造后」
▪️结合业主需求点以及生活习惯,打造出温暖而理性的空间,让入住的家人有了更多互动沟通的共享空间,客厅、厨房、阳台三个区域一个总的融合,可以相互对望的景观视野延伸,赋予空间一种流动感和谐感。
▪️有结合性地思考原户型的结构合理性,多用不同的角度思考与定义会延展更多的维度面。
业主为两夫妇与小男孩,对于空间的开合接受程度也较高,除了私密空间区域外的功能空间多可考虑不同程度的开放及对外,让动线的走向也不至于过于的单一。
▲ 平面方案布置 /Plan layout
▲ 空间三维图 /Spatial 3D map
灯光效果展示【點烛照明设计】
灯光赋予建筑生命•赋予空间灵魂。室内照明设计主要突出室内建筑以人为本、和谐自然的空间设计理念。并依不同功能需求采用适当的灯具、光源、色温及光束角并结合智能照明控制系统进而调节出舒适的照明视觉环境。
#TWO / 2
Renderings 效果图
入户正对着区域是厨房,选择做成了开放式的厨房组合,达到了空间的通透感,增强空间的延展性,餐厨一体+无障碍交流的优势是传统厨房所无法比拟的。
·入户玄关&餐厅区域
入户玄关与开放式餐厨厅,空间光线通透;充分利用空间的同时还优化了区域动线,岛台设计可以将备餐、烹饪、就餐区紧邻在一起,让分区更加的合理,转身之间便能完成各个动作。
客餐厅空间重新规划,优化功能区的布局;
整体以简约现代设计为主,整体色调黑白灰为主调,电视背景墙柜门的白色,很好地放空了墙面。
· 客厅区域
光影是自然的魔法师,洒下光影下的每一件物品留下斑驳痕迹,房屋双阳台的户型结构也使得室内空间能照入更多光影,使其室内空间更具惬意。
·主卧区域
温暖自然的主卧空间,予以温暖而细腻的现代简约暖宅。
简约纯粹、整体以现代简约的设计去勾勒出空间格调,温暖的色调营造温馨的氛围;背景墙灯带效果,营造出惬意舒适的家居环境。
·儿童房区域
整体选择不同饱和度的蓝灰,搭配白色,静谧中带点活泼的感觉。靠墙一侧做开放格,有了一个展示和存放的区域。
·卫生间区域
卫生间墙地砖一体
#THREE / 3 設計师 DESIGNER
Young
马仲扬
———————— design with heart,simple life ————————
▼ 项目介绍
项目地点:广东省广州市
项目名称:金门大厦
空间面积:135㎡
设计单位:奕米設計工作室
主持设计师:马仲扬
设计师:莫泽鹏
设计团队:奕米設計
主体施工:朱飞施工组
照明设计:點烛照明设计
Project Name:JINMENDASHA
Roject Location:Guangzhou, China
Project Type:Residential
Design Area:135㎡
Design Firm:YIMIDESIGNSTUDIO
Host designer:Young
Designer:Mozepeng
Design Team:YIMIDESIGN
Main Body Construction:Zhufei Tea
Lighting design:LIGHTCANDLE
了解更多
YMDS
原创设计?
———————— design with heart,simple life ————————
欢迎分享至朋友圈
Welcome toshare tofriends
奕米設計工作室
,侵权必究
Reproduced please specify "YIMI DESIGN STUDIO" Rights Reserved
-联系 YIMI-
TEL:020-88529026(YIMI 設計工作室)
广州东方国际商业广场二楼东一街 207-209
客服
消息
收藏
下载
最近


























