查看完整案例


收藏

下载
JM·L 宅 126㎡
01设计理念 Philosophy of design
在接受业主委托,了解业主情况后,我们探索原空间不同的角度,希望通过设计来挖掘更多不同的生活方式,将空间打散重组探讨新的空间属性及室内空间动线,让新的空间与其使用者产生新的情感共鸣。
业主需求:
两大一小居住,需要两个卧室;
平时有家庭朋友聚餐习惯,日常使用需要比较大的一个会客用餐区;
解决原有狭小厨房、多功能房空间不足问题;
改动后有更多的储物空间。
△ 原始结构图
1. 厨房与多功能房空间狭小,在设计初期着重考虑到两个空间新的可能性,打通原有两堵隔墙,让厨房连通功能房空间做一个一字型的开放式厨房。
2. 拆除厨房及多功能房墙体后,露出原结构的承重柱子,通过“插入”水吧岛台功能,弱化承重柱子硬伤,同时也加入了新的功能使用性。
3. 打散重组空间,把客餐厅与原主卧进行一个转换改动,同时也将餐厅与水吧台、开放式厨房空间形成回型动线。
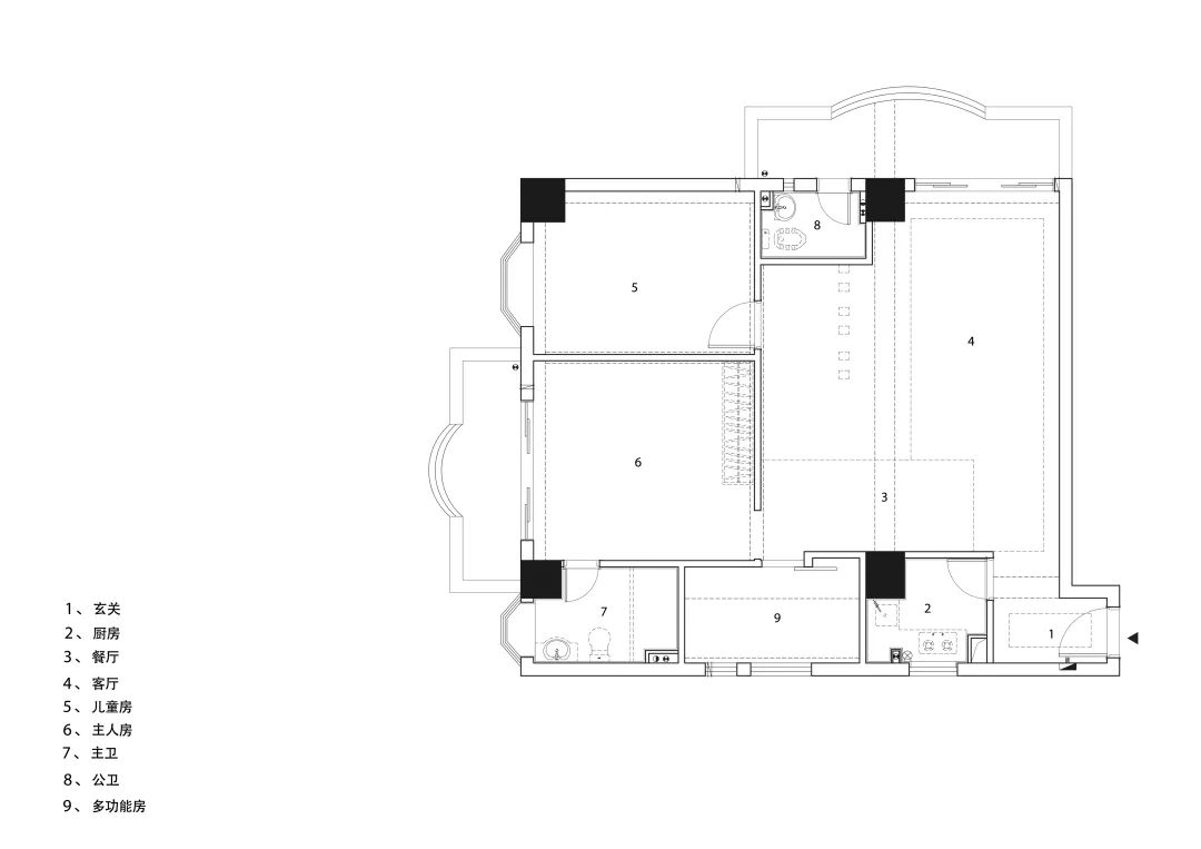
△ 平面布置图
△ 轴测图
改造后营造出温暖而理性的空间,家里最大化开放式公区让入住的家人有了更多互动沟通的共享空间,客餐厅、厨房、阳台三个区域一个总的融合可以相互对望的景观视野延伸赋予空间一种流动感和谐感。
△ 平面方案 GIF 展示图
YIMI DESIGN STUDIO〡
广州市荔湾区-JM·L 宅 126㎡
原户型阐述
房屋结构、横纵向梁,多且高低不平、结构内部有四根较大称重,导致整体使用功能狭窄受限。
本案业主为两夫妇与小男孩,自身对于空间的开合接受程度也较高,所以,整体以简约现代设计为主,整体色调黑白灰为主调。
02厨房&餐厅
Kitchen&Restaurant
入户进来一字型厨房,在储物和使用操作上也优化了,洗、切、炒,使得更加舒适便捷。冰箱嵌入橱柜拿取方便,水吧岛台作为餐厨空间的分割,既能弱化承重柱子的硬伤也方便厨房的操作和收纳。
插入柱子水吧台与餐厅、厨房空间成平行结构,空间动线布局更流畅贯通,也保证了空间足够顺畅。一侧为烹饪区,一侧为享受美食的就餐区。亲友聚餐时,足够几人在厨房协同操作。
03 客厅 Living room
改动后的客餐厅,整体一个横向大厅也使得整个空间更加整体,客、餐、厨三者间没有墙体的阻隔,视觉上更加通透,空间动线布局更流畅贯通。
电视背景墙柜门的白色,很好的放空了墙面。
04主卧室
Master bedroom
主卧床头灰色背景墙与墙裙进行区分,使背景墙空间多了些层次对比感,旁边整排白色定制柜结合横梁压着柜体处做了玻璃开放格与木色柜体,让空间不单一同时也不影响整体性。温暖的原木纹理铺陈空间底色,如此带有自然属性、不加修饰的材质具有天然的亲近感。
光影是自然的魔法师,洒下光影下的每一件物品留下斑驳痕迹。
主卫
Main guard
05 儿童房 Children’s room 半开放式的收纳方式为儿童房增加了些许节奏和韵律,供孩童自由展示自己的兴趣爱好,记录每一刻的成长印迹...
End...
设计思考
有结合性的思考原户型的结构合理与否,多用不同的角度思考与定义会延展更多的维度面,天花与柜体设计采用体块穿错的方式弱化原有结构梁与承重柱,让原结构不再过于独立的存在。
E N D
———————— · ————————
ABOUT DESIGNRE
关于项目
项目地点:广东省广州市
项目名称:JM·L 宅
空间面积:126㎡
设计单位:奕米設計工作室
主体施工:奕米設計施工组
Project Name:JM`L 宅
Roject Location:Guangzhou, China
Design Area:126㎡
Design Firm:YIMI DESIGN STUDIO
Main Body Construction: YIMI CONSTRUCTION TEAM
获奖荣誉
AWARDS HONOR
向上滑动阅览
百度馨居奖“年度设计师十佳”奖
金腾奖“年度餐饮空间设计大奖”
第十届筑巢奖“普通户型设计大奖”
年第十届筑巢奖“商业空间设计大奖”
40UNDER40 中国(广州)设计杰出青年
包豪斯现代设计奖·金奖
第五届“包豪斯奖”国际设计大赛办公类优秀奖
第五届“包豪斯奖”国际设计大赛住宅类银奖
CBDA 中国装饰设计奖铜奖
中国设计品牌办公空间银奖
中国设计品牌办公空间媒体特别关注奖
中国国际设计周“金尺杯”办公类优秀奖
中国国际设计周“金尺杯”住宅类优秀奖
中国(广东)住宅设计精英榜 100 强
金腾奖 TOP100
40UNDER40 中国(广州)设计杰出青年
中国建筑装饰金鹰设计大赛金奖
第八届“筑巢奖”优秀奖
国际“艾鼎奖”优秀奖
第六届中国“艾舍奖”金奖
了解更多
YMDS
原创设计?
———————— design with heart,simple life ————————
YIMI DESIGN
欢迎分享至朋友圈
Welcome toshare tofriends
奕米設計工作室
,侵权必究
Reproduced please specify
"YIMI DESIGN STUDIO"
Rights Reserved
-联系 YIMI-
020-88529026
(YIMI 設計工作室)
广州东方国际商业广场二楼东一街 205-209 室
客服
消息
收藏
下载
最近





































