查看完整案例


收藏

下载
LUXHILLS
麓山国际社区项目,位于成都国际城南副中心天府新区。拥有成都平原罕见的浅丘地形,山环水绕的自然坡地,是城市低密高档住宅宝地。
香溪堤别墅坐落于麓山国际,绿荫环绕。
Luxhills International is located in the south central part of Chengdu International City, Tianfu New Area. It has a rare shallow hill terrain and natural slopes surrounded by mountains and water, making it a prime location for low-density high-end residential living in the city.
Xiangxidi Villa is situated within Luxhills International, surrounded by lush greenery.
设计师 XU 说
对住宅空间设计的追求,即是对美好生活的追求,无关设计风格,设计让家散发更多能量,传递情绪价值。
与业主建立共情关系,是设计的第一步。切身置于空间,想象未来的生活场景及情绪抒发,以第一视角创造家的形态。让家空间满足日常起居基本需求以外,携带更多精神属性,彰显住宅个性,传递生动的人文气质。
家不是静态的、不变的,而是家人之间互动的有机体,就像一个多维体验的收纳器和放大器,将人的行为、体验和感知收纳起来再放大。让业主和家人,肆意敞开全部感官,来感受柔软的生活。
the pursuit of residential space design is the pursuit of a better life. Regardless of design style, the design should bring more energy to the home and convey emotional value.
Establishing empathy with the homeowner is the first step in design. By placing oneself in the space, imagining future living scenarios and emotional expression, and creating the form of the home from a first-person perspective, the home space should not only meet basic daily needs, but also carry more spiritual attributes, showcasing the individuality of the residence and conveying a vibrant humanistic atmosphere.
A home is not static or unchanging, but rather an organic entity of interaction between family members, like a multi-dimensional receptacle and amplifier, collecting and amplifying human behavior, experience, and perception. Homeowners and family members should freely open up all their senses to feel the softness of life.
家,不被风格定义
Home is not defined by style
在室内设计风格上,这个家是不被定义的风格。
这个家是一个混搭着温暖,仪式感,优雅,浪漫的综合空间。
就像这个家的主人一样,不被世俗定义。
生活的点滴,成长的经历,最终化成了有力量且温暖浪漫的人。
In terms of interior design style, this home is not defined by a particular style. It is a comprehensive space that mixes warmth, ceremony, elegance, and romance, just like the homeowner who is not defined by societal norms. The bits and pieces of life experiences and growth ultimately become a powerful yet still warm and romantic person.
光影长廊
The Corridor of Light and Shadow
原始建筑中是狭长的走廊,设计师利用空间本身的形态,微调顶面,以弧线交错的方式做成穹顶,搭配“上泛光”的设计手法,将顶部打亮,整个走廊变得通透而明亮起来。
The original structure was a narrow corridor, but the designer utilized the shape of the space itself, made minor adjustments to the top, and created a dome-shaped structure with interlacing curves. Combined with the "upward lighting" design technique, the top of the corridor was illuminated, making the entire corridor transparent and bright.
温馨客厅
Warm living room
原始客厅空间顶部是欧式尖顶,为保证整个空间的协调性,设计师将前半部分客厅区域,顶面封闭做平顶,后半部分在壁炉处,露出原始顶面梁柱结构,并搭配灯光强化线条感,这样空间既满足了家庭客厅的温馨,也在空间上留了惊喜。
The top of the original living room space is a European spire. In order to ensure the coordination of the whole space, the designer will be the first half of the living room area, the top surface closed to make a flat roof. The second half in the fireplace, showing the original top beam and column structure, and with lighting to strengthen the sense of line, so that the space not only meets the warmth of the family living room, but also left a surprise on the space.
悠闲食光
Leisurely food light
餐厅位置处于空间最顶端,两面落地玻璃,正对窗外景色。将玻璃门完全打开,让餐厅和室外露台连接,成为一个更敞亮的餐饮空间。在这里除家庭聚餐,也是下午茶聚会的最佳舒适区。
The dining room is located at the very top of the space, with two floor-to-ceiling Windows facing the view. The glass doors are fully opened, allowing the dining room to connect with the outdoor terrace and become a larger dining space. In addition to family dinners, it is also the best comfort zone for afternoon tea parties.
闲趣空间
Leisure space
整体是娱乐聚会的空间,所以整个空间没有隔墙,是大开大敞的状态,代表着主人对朋友的一种态度。
空间分为前后两部分,前半部分面对高尔夫球场,推窗即见风景,搭配精致的小花园,仿佛一幅精致的油画。
客厅与餐厅、吧台一体化设计,空间更为通透敞亮。地面采用颜色纹理独特的大理石岩板,软装以浅色为主,不规则的几何造型,为空间增加一丝灵动。
The whole space is a space for entertainment and gathering, so the whole space has no partition wall and is wide open, representing the host’s attitude towards friends.
The space is divided into two parts, the first half facing the golf course, pushing the window to see the scenery, with delicate small garden, just like a delicate oil painting.
The integrated design of living room, dining room and bar counter makes the space more transparent and bright. The floor is made of marble rock plate with unique color texture. The soft decoration is mainly light colored. The irregular geometric modeling adds a touch of flexibility to the space.
后部分使用温暖的木地板,提供给小朋友娱乐空间。没有过多的软装,空间开敞且自由。阳光透过落地窗,肆无忌惮地洒进房间,给空间增添自然的色彩。
中心部分放置一个造型独特的圆桌,桌上插满娇嫩的鲜花,让整个空间温馨浪漫。
Warm wood floors are used in the back part to provide children with entertainment space. Without too much soft decoration, the space is open and free. Sunlight pours unrestrained into the room through the floor-to-ceiling Windows, adding a natural color to the space.
A unique round table is placed in the center, and the table is filled with delicate flowers, making the whole space warm and romantic.
负一楼卫生间,墙面整体使用了丛林风格的定制瓷砖,为了给空间一种自由清新的感觉。
For the toilet on the first floor, the whole wall is made of jungle style custom tiles, in order to give the space a free and fresh feeling.
静享美梦
Enjoy your dream in peace
温馨柔软是主卧的主旋律,没有过多是色彩渲染,让主人在空间尽情享受宁静时光。
Warm and soft is the main theme of the master bedroom, not too much color rendering, let the host enjoy the quiet time in the space.
衣帽间开敞的空间布局,与梳妆台连接,窗外的树影与阳光,投射在窗台,形成一道独特的风景线。
The open space layout of the cloakroom is connected with the dresser. The shadows of trees and sunlight outside the window cast on the windowsill, forming a unique scenery line.
主卫黑白格调,永不褪色的经典。看似简单的小花纹,在不断地重复再重复中,汇聚成大魅力空间。
The main wei black and white style, never fade classic. Seemingly simple small patterns, in the constant repetition and repetition, converge into a large charm space.
回归自然
Return to nature
伫立于时光洪流之中,优雅不曾褪色。随处可见的花卉和绿色植物、雕刻精细的家具、黑白格纹花砖,将建筑点缀在自然中,每一处都那么精致独到,在设计上给予心灵自然的回归感。
Standing in the current of time, grace never faded. Everywhere flowers and green plants, finely carved furniture, black and white checkered tiles, the architecture is interspersed in nature, each place is so exquisite and unique, giving the heart a sense of return to nature in the design.
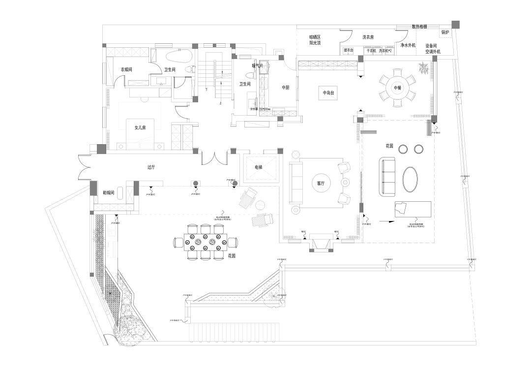
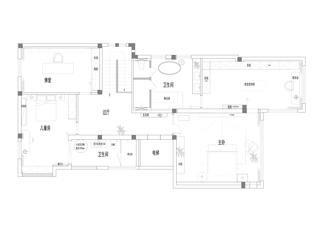
项目平面——The project plan ——
-1F
1F
2F
项目概况——
Project Overview ——
项目名称:麓山国际·香溪堤
项目地址:成都
设计公司:XUNICA DESIGN
设计时间:2021 年 11 月
完工时间:2023 年 2 月
项目面积:730㎡
主案设计:朱旭
设计团队:向东海、杨忠屾、张一林
项目管理:向东海、杨忠屾、张一林
项目推广:彭梨
空间摄影:尔见摄影丨方正、草塘
Project Name: luxhills International · Xiangxi Di
Project Address: Chengdu
Design Company: XUNICA DESIGN
Design Time: November 2021
Completion Time: February 2023
Project Area: 730 square meters
Chief Designer: Zhu Xu
Design Team: Xiang Donghai, Jason Yang, Zhang Yilin
Project management: Xiang Donghai, Jason Yang, Zhang Yilin
Project promotion: Peng Li
Space photography: Erjian Photography | Fangzheng, Caotang
主材及软装品牌(部分):
IMOLA、洛玛诺、马可波罗、意美、高仪、丰达信、中赛、霍柯、林语生活
Main material and soft furnishing brands (partial):
IMOLA, LOMANO, Marco Polo, Yimei, Gaoyi, Fengdaxin, Zhongsai, HUECK, Lin Language Life
XUNICA DESIGN
客服
消息
收藏
下载
最近










































