查看完整案例


收藏

下载
天使印象总部位于四川成都环球中心,是高端儿童摄影机构,拥有 21 家不同风格的主题场馆。本次 XUNICA DESIGN 为天使印象设计的莉帝希雅落于环球中心 18 楼,项目的室内面积约 300 m²。
XUNICA 设计初衷是做独一无二的设计,不用过去的经验做现在的设计。把莉帝希雅的品牌定位,调性融合在装修设计里—温和又不失灵动的优雅。
Angel Impression is a high-end children’s photography agency headquartered in the Global Center of Chengdu, Sichuan, with 21 themed venues of different styles. This time, Xunica Design designed the Liditia for Angel Impression located on the 18th floor of the Global Center, with an indoor area of about 300 m². Xunica is designed to do unique design, not to use past experience to do the current design. The brand positioning of Lidichia is integrated with tonality in the decoration design—gentle and elegant without losing agility.
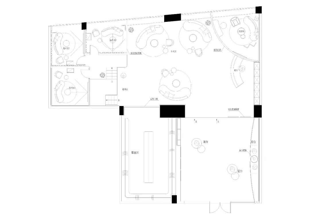
平面分析:
Plane analysis:
△平面布局△
△平面布局及动线△
最大限度地优化空间
Optimize the space to the maximum
设计师本次为莉帝希雅定了藕粉色和米白色为主色调,动态偏为柔静,视角淡雅。
“形式必须具有内容,且内容必须与自然联系在一起。”这是阿尔瓦·阿尔托曾说过的一句话。
因为顾客主体是孩子,设计师运用了大量的弧形、流线的元素、3000k 的暖光来为孩子和大人共同打造一份温馨自然的环境,配合柔美音乐,乳香味的香薰做出属于所有人的美丽的“梦境”。
The designer chose lotus pink color and creamy white as the main color for Li Di Sia, the dynamic bias is gentle and quiet, and the perspective is elegant.
"Form must have content, and content must be connected with nature." This is a quote from Alva Aalto. Since the majority of customers are children, the designer uses a lot of arc and streamline elements and 3000K warm light to create a warm and natural environment for children and adults, and creates a beautiful "dream" with the soft music and frankincense aroma in the store.
入门隧道式的长廊将顾客引向店内,其隧道背景墙装饰着各位照相师的照片和拍照历程。阶梯向上的引入形成了让客户从进门开始都始终都在中心点上。
The entry-level tunnel corridor leads customers to the store, and the tunnel background wall is decorated with photographers’ photos and their journey. The introduction up the ladder forms a way to keep customers at the center from the moment they enter.
以流线和弧形相结合,设计师还考虑到小孩眼睛对颜色更敏感,所以他们喜欢鲜艳的,亮亮的东西,展示台选用了暖金色不锈钢材料,让其与吊顶有了首尾呼应之意又能吸引到小孩的注意力。本是尖角的地方全部用弧形或是钝角展出,安全性能也充分得到了保障。
With the combination of streamline and arc, the designer also takes into account that children’s eyes are more sensitive to color, so they like bright, like bright things. The display platform uses warm gold stainless steel material, so that it and the ceiling have the end of the meaning of echo and can attract the attention of children. This is a sharp corner of the place all with arc or obtuse Angle display, safety performance is also fully guaranteed.
? 丰盈的弧线 Arc of abundance
设计师将整个空间进行拆分,入口方位进行了调整,让空间更好的收纳自然光线。
展台的添加也让氛围里添了些灵动。
入门的展台吊顶层高只有 2.4 米,设计师在吊顶的材质选用了镜面不锈钢,以这种方式来减少层高空间带来的压迫感,增加空间的延伸感,舒适度,以此变成了连接不同空间的纽带,将墙、顶,地融为一体。
The designer split the whole space, and adjusted the entrance orientation, so that the space can better receive the natural light. The addition of the booth also adds some cleverness to the atmosphere.
The ceiling height of the entry booth is only 2.4 meters. The designer chooses mirror stainless steel as the material of the ceiling, in this way to reduce the sense of oppression brought by the height of the space, increase the sense of extension of the space, and comfort, which becomes a link connecting different Spaces, integrating the wall, the top and the ground.
其中,吧台区用了水纹玻璃来做隔断,与曲面墙体也产生了相互呼应的作用。弧形的拱门,流线墙体,曲线的灯带,圆柱体的展台,甚至家具,所有外向表达都是为了增加空间之中的互动性。
Among them, the bar area uses water grain glass to do partition, and the curved wall has also produced a reciprocal effect. Curved arches, streamline walls, curved light strips, cylindrical booths, and even furniture, all outward expressions are intended to increase interactivity in the space.
弧形的吧台布置在入门隧道的终点。向后开放的弧形,灯带的延用,使得像是在包裹着整个店面,保证了吧台的私密性,让使用者有安全感,更加安心。
A curved bar is arranged at the end of the entry tunnel. Backward open arc, the extension of the light belt, making it seem to be wrapped in the whole store, to ensure the privacy of the bar, so that users have a sense of security, more at ease.
(大厅)以吧台为中心,向外扩散出空间弧形,形成了动线和空间。延续整体弧形元素,不同层次的对望和窥视,摆件的交糅,使所有元素都更为贴合,不会突兀。
With the bar counter as the center, the space arcs are diffused outwards to form moving lines and space, continuing the overall arcs elements. The peeping and peeping of different levels and the blending of ornaments make all elements more fit without being abrupt.
?玻璃灯具以形意柔化空间
Vitreous lamps and lanterns with shape meaning soft change space
(客厅休闲区的纸片灯)灯具的选用,材质上设计师选择了亚克力玻璃,整体以“柔”为主,轻盈且更加安全,相互叠加的纸片灯让空间更好的建立了内外视线联系,共同构成了自然般流动的立面效果。
The selection of lamps and lanterns, the designer chose acrylic glass material, the overall to "soft", light and more safe, superimposed paper light so that the space better establish the connection between the inside and outside vision, together constitute a natural flow of the facade effect.
质感饱满,一以贯之,赋予空间张力。刚与柔的衔接,于此达之平衡。玻璃灯具是曲线元素的延伸,以形意柔化空间,消解层高太高带来的空洞感,契合了休闲区空间的氛围调度。
Full texture, a consistent, give space tension. The cohesion of firmness and softness is balanced here. The glass lamp is an extension of the curve element, which softens the space in shape and meaning, eliminates the sense of emptiness caused by the high storey height, and conforms to the atmosphere scheduling of the space in the leisure area.
设计师巧妙地设计了一个斜落地窗与三角形的墙壁相呼应,吧台左边的弧形选片室,弧形沙发环绕着布置,视觉上围合出一个开敞通透公共大厅。
The designer cleverly designed a French window echoing the triangular wall, the arc-shaped film selection room on the left side of the bar, and the arc-shaped sofa are arranged around, which visually enclosed an open and transparent public hall.
选择自己喜欢的位置,倚着舒适座椅,感受风与枫叶的律动。
巨大的落地窗让客人在谈话、选片的同时,也将环球中心的景色一览无余。白天,当阳光透过落地窗洒入室内,整个空间干净而明亮。
Choose your favorite position, lean on the comfortable seat, feel the wind and maple leaf rhythm. Large floor-to-ceiling Windows allow guests to talk and select films while taking in sweeping views of the Universal Center. During the day, when the sun shines through the floor-to-ceiling Windows, the whole space is clean and bright.
窗帘的选择,设计师对比了多种材质、效果后定下了白色纱帘和米白的涤纶帘。轻盈飞舞的窗帘,空气中飘来淡淡的百合花香;客人坐在选片室,挑着喜欢的照片,好像整个空间里,就只剩时间在流失了。
The choice of the curtain, stylist compared a variety of material to pledge, after the effect set white gauze shade and rice white polyester shade.
The curtain of lightsome flutter, light lily flower fragrance floats in the air; Guests sit in the selection room, picking out their favorite photos, as if there is only time left in the whole space.
微风吹动,曼妙的纱帘随风飘逸,雕塑的形态与“日落灯”的完美配合更是相得益彰。
When the breeze blows, the graceful gauze curtain blows with the wind, and the perfect combination of the sculpture form and the "sunset lamp" brings out the best in each other.
休闲区的左右两边选择了两副巨大的抽象画,填满着整个空间,无意间又陷入另一种沉绪。凸显增加层次感,注入设计师的欣赏能力。
Two large abstract paintings were chosen to fill the space to the left and right of the leisure area, inadvertently plunging into another kind of melancholy. Highlight to increase the sense of hierarchy, into the designer’s appreciation ability.
?继续衍生
Continue to derive
在靠近大厅的二楼选片室,设计师没有用实墙做隔断,而是用玻璃墙的做隔断,室内一片宽敞明媚,玻璃窗尽情地把阳光和揽进室内,若隐若现的纯白窗纱搭配着枫树带来的绿意,留下了轻柔而恰到好处的暖意。
In the selection room on the second floor near the hall, the designer did not use solid wall as partition, but with glass wall as partition, a spacious and beautiful room, the glass window to the best of their ability to bring sunshine and into the room, the faint white window screen with maple trees to bring the green, leaving a gentle and just warm.
每一梯的楼梯装有灯带,柔光的散出,柔化了玻璃切割扶手带来的凛冽。扶梯选择的玻璃,设计师让性能安全性得到了保障,更增加了美观度。
The stair of each ladder is fitted with lamp belt, of soft light come loose, soft changed the coldness that vitreous cutting armrest brings.
The glass selected for the escalator is guaranteed by the designer to ensure the performance and safety and increase the aesthetics.
(楼梯)
(试衣间)
试衣间继续沿用了动态元素,设计师不满于一成不变的墙壁,让流线型的墙壁与弧形镜子相互呼应,巧妙地隔断令试衣间又自然分割为几个小区块,各自具备功能又相互保持关联。
The fitting room continues to use dynamic elements. The designer is dissatisfied with the invariable walls, so that the streamlined walls and the curved mirror echo each other. The clever partition makes the fitting room naturally divided into several small blocks, each with its own function and maintain correlation with each other.
(选片室)
?
更多细节图
More details
(休闲区茶几)
(休闲区茶几)
(雕塑)
最后,设计总监 XU 这样说到:“设计的重点在于营造空间氛围,让每位客人都能沉浸在我们打造的世界中尽情幻想。踏入莉帝希雅的一瞬间,就如同进入一个全新的现实世界。”
Finally, Xu, the design director of?, said, "The key point of the design is to create an atmosphere that allows every guest to immerse themselves in the world we have created. The moment you step into Lyditia it’s like stepping into a new reality."
项目概况:
—
Project Overview
项目名称 | 天使印象.莉帝希雅
项目地点 | 中国 成都
项目面积 | 300㎡
项目时间 | 2021 年 4 月
设计公司 | XUNICA DESIGN
服务方式 | 设计
主案设计 | 朱旭
项目团队 | 张一林、廖欣然
项目推广 | 奥利奥
The project name | Ange I Impress i on
Project site | chengdu, China
Project area of 300 ㎡ | project
Completion time | in April 2021
DESIGN company | XUNICA DESIGN
Service | design
The main case design | Zhu Xu
The project team | ZhangYiLing, LiaoXinRan
Project marketing | Aoliao
-END-
客服
消息
收藏
下载
最近































