查看完整案例


收藏

下载
XUNICA DESIGN
>
>
>奇想者
<
<
<
如果,世界只剩下一种颜色那会是什么?
山本耀司:
黑色,因为黑是一切颜色的尽头。
香奈儿:
黑色,可以让周遭的一切相形见绌。
亨利福特:
黑色,你可以选择任何颜色,只要它是黑色。
色彩对于XUNICA DESIGN来说重要无比,如何从无数种色彩中选择一个主要色作为设计的核心颜色,是需要考虑很多方面的。
而这次
HUECK霍柯铝合金系统展厅
设计,XUNICA DESIGN的设计师向东海选择了黑色作为主色调,黑色谦虚又高傲,是浸润了黑夜的最神秘的颜色。
Black在法语中叫“Nior”被译为“黑色”,“Nior”被用来形容“高级的事物”,当黑色运用到建筑装修当中,空间艺术的魅力将无与伦比。
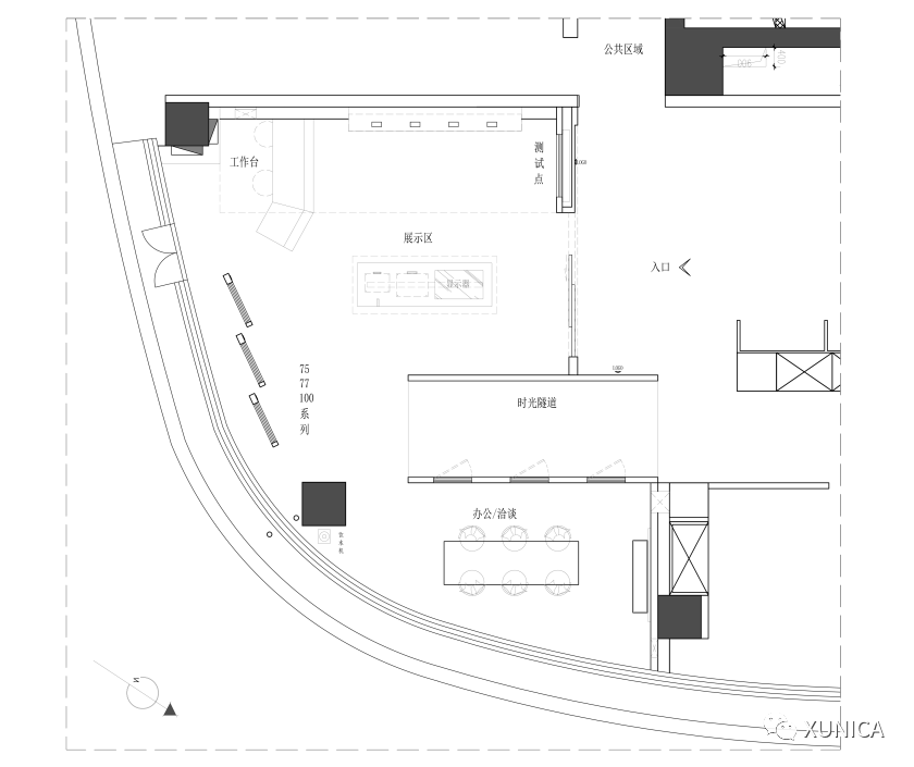
时光隧道展览区的布置上,选取全黑的展架,灯光用线条勾勒,人物资料介绍字体选用白色,黑白搭配向来是最经典并且能够包罗万象的颜色。
系列产品展示区,这里放置了HUECK 霍柯的门窗展品,将门扇放置在几个圆形大理石凳上面,大理石凳有舞台的寓意。
当你走过时光隧道,一眼就能看到整齐平行摆放的展品,而这里的展品也选用的黑色框架。
黑与黑相互呼应,愈向前,愈神秘。
样角展示区,小小的样角背景由无数白色透光圆点构成,这种背景墙就像无数的时尚舞台走秀会采用的一种。
这里虽没有无数镁光灯,却有着谁与争锋的气势。
产品资料台,选取灰色长方形且棱角分明的大理石,表现了锋利硬朗的感觉。
休闲洽谈区,一个舒适的半开放的区域,此处四周皆能感受到线条艺术之美。而其中白色的布艺沙发,也给整个硬朗的空间带来一抹温柔。
工作台,这里有整个空间唯一的异色,红色,它是最出跳的颜色。而在这里的仿造火焰的红色灯幕,代表了热情与活力。犹如人类的心脏,是整个生命的最重要的核心,它也是整个空间的活力来源。
用最简单的颜色,最简单的线条,画出最复杂的空间。“时尚沉静 前卫简单”,是这个空间的最终的表达。
设计师向东海说:“把每个设计项目当做热爱的事情,把客户的需求当成应尽的责任,设计是我愿意用一生去追寻的事业。不安于现,不胆怯,一直向前。”
Befor e·
After
改造前 改造后
B
A
B
A
B
A
>> 效果图展示 <<
>> 设计图展示 <<
项目名称 | HUECK 霍柯铝合金系统展厅
项目地址 | 中国 成都
设计机构 | XUNICA DESIGN
设计总监 | 朱旭
主案设计 | 向东海
项目撰稿 | 鲁越
项目面积 | 80㎡
完工时间 | 2020年8月
XUNICA 设计事务所简介:
XUNICA(音译XUNICA),X 在意大利语中意味着“为”,UNICA是意大利语“唯一”的意思。即意大利语
“唯一为你”
之意。
“nica”在意大利语种表示,初生的,新鲜的,意为 “始终把自己当作新人,不断学习和追求新的事物,并且始终保持初心为你服务”。
我们要将设计归于最初的以人为本,用开放、无界的思维发散设计,用稳固、包容的技法将其切实地落地呈现。我们的设计不仅限于形式化的设计,而是根据你的个人属性,打造最适合你的生活方式。
xunica作为一个产品,终将成为每个寻求“美好”的人,生活中必不可少的一种 “习惯”。
向东海
主案设计师
追求极简设计艺术
从事室内设计行业多年,追求先锋前沿设计艺术,项目遍及全国。作品注重质量与过程,对待设计充满热情与耐心。
客服
消息
收藏
下载
最近


























