查看完整案例


收藏

下载
XUNICA DESIGN
>
>
>奇想者
<
<
<
XUNICA & ROTASS的第一次联合,打造了“破茧成蝶”的精品店新形象,将现代学院派风格植入品牌灰蓝色调中,让英式绅士气质与蝴蝶的柔美优雅相碰撞,经典而弥新。
1. 色彩与建构
歌德的《颜色的理论》探讨颜色与人类心理的关系,他写道:“蓝色就像天空和群山一般遥远,我们总爱慕蓝色,在蓝色中思考,因为蓝色牵引着我们,令我们向往。”
XUNICA 设计总监 Xu 在这一次与 ROTASS 的合作中正是选择了“蓝色”作为这次设计的核心色调。
蓝色是最能引起人类共鸣的颜色,在文学作品中也反复出现,它更容易代表情感和心理状态的隐喻,令人情绪得到舒缓。
整体空间给人的感觉是温柔清爽,主色调以灰、蓝、白为主,其中低饱和度的颜色降低了对人情绪的影响。
舒缓安宁是设计师在颜色选择上想要表达的。
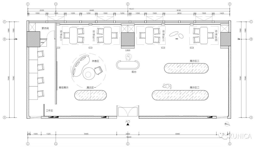
2. 空间布局与线条
传统的
珠宝店的展示柜通常分隔开
了
客人与
店员的距离
,
而
设计师在 ROTASS 的设计空间上
以博物馆展馆为灵感,柜体以
太空舱为灵感来源,选取
哑光的金色装饰,轻奢的同时还兼具了现代感。
(行动动线图)
展柜的设计与摆放,让
人物的
行动动线更加灵活,
降低了
空间的束缚感
。可以多个方位观赏珠宝,也在情感上更容易让人产生亲切感和自由感。
在空间的开阔与满足上,二者做到了极致的平衡。洽谈区域选择无束缚的半开阔空间,同时留有足够的对珠宝观赏的视野距离。
另外空间的适当留白让每一种其余的色彩在渲染的时候能够恰到好处,不显突兀。
主体造型上以法式复古拱门为灵感来源,从结构上打造的双层空间形成的宽阔走廊,从线条上选择弧形,让视野更加的开阔,同时让空间更加具有呼吸感。
布局上配合休憩椅、装饰、灯光结合的小景观,温暖雅致。
不同功能区域交错布置,最大程度上兼顾观赏、佩戴和休息的空间。
3. 元素与理念
弧形元素在整个空间都有表达,它是学院派中唯一代表永恒和经典的线条。弧形拱门,打造出一个相对私密和静止的长廊,寓意永恒。
设计师将 ROTASS 品牌图腾-蝶蛹作为设计基础。
蝴蝶元素配合主照明灯,在展示区域的顶部悬吊点缀明朗氛围,寓意着女孩们在戴上戒指那一刻开启一段崭新的人生。
灰色镜面让整体空间无穷延伸,令站在柜台前挑选戒指的你,在镜中与蝶影融为一体,成为一幅画卷。
“我想打造一个场景。用空间、光线、造型,忠实而纯粹的告诉所有人,人们走进这里,是对未来充满期待幸福向往的。” Xu说。
Before ·
After
改造前 改造后
B
A
B
A
B
A
>> 设计图展示 <<
项目名称 | ROTASS 郑州店
项目地址 | 中国 郑州
设计机构 | XUNICA DESIGN
设计总监 | 朱旭
参与设计 | 周鑫星
项目撰稿 | 鲁越
项目面积 | 155㎡
完工时间 | 2020年8月
XUNICA 设计事务所简介:
XUNICA(音译XUNICA),X 在意大利语中意味着“为”,UNICA是意大利语“唯一”的意思。即意大利语
“唯一为你”
之意。
“nica”在意大利语种表示,初生的,新鲜的,意为 “始终把自己当作新人,不断学习和追求新的事物,并且始终保持初心为你服务”。
我们要将设计归于最初的以人为本,用开放、无界的思维发散设计,用稳固、包容的技法将其切实地落地呈现。我们的设计不仅限于形式化的设计,而是根据你的个人属性,打造最适合你的生活方式。
xunica作为一个产品,终将成为每个寻求“美好”的人,生活中必不可少的一种 “习惯”。
朱旭
XUNICA DESIGN创始人/设计总监
意大利青年建筑设计师协会中国区负责人
2017年创立XUNICA DESIGN设计事务所,专注时尚高端设计,与国际化潮流接轨,全面覆盖建筑、商业、住宅、生活等领域。旨在做“唯一为你”的设计。
客服
消息
收藏
下载
最近


























