查看完整案例


收藏

下载
美,之于建筑 之于珠宝
—
Beauty, in architecture, in jewelry
已故的著名意大利画家与雕塑家朱塞佩·马兰德里诺 Giuseppe Malanrdino,曾在他的风景系列版画中再现了永恒之城罗马的盛世繁华。尤其是大量巴洛克建筑聚集的纳沃纳广场,透过这些华美的几何图形,或许可以窥见现代珠宝设计的艺术来源。
The late Giuseppe Malanrdino, the famous Italian painter and sculptor, recreated the glory of the Eternal City in his series of landscape prints. In particular, Piazza Navona, where a large number of baroque buildings gather, may reveal the artistic origin of modern jewelry design through these gorgeous geometric figures.
ROTASS 高定珠宝店,一座巴洛克建筑风格的建筑,坐落于广州塔的霓虹灯下。粗粝、原始、质感,历经岁月徜徉的建筑,仍保留着艺术魂魄的点滴。在不加修饰的暴露之下,素颜墙壁上那些肉眼可见的微瑕充盈着,不刻意讨好的自在感,诠释着巴洛克“俗丽凌乱”的内涵之意。
The Rotass Jewelry Store, a Baroque building, sits under the neon lights of the Canton Tower. Rough, raw and textured buildings that have gone through the ages still retain the bits of artistic soul. Under the undecorated exposure, the subtle flaws visible to the naked eye on the without makeup wall are full, and the unintentionally pleasing sense of freedom interprets the connotation of "gaudy and messy" of the Baroque.
如果说建筑,在历经光照、雨淋之后,时光在其面庞留下的印迹,依然是经典的美貌。那么,钻石,却在岁月的打磨、历练中,愈加通透、闪耀。设计师与工匠们,总在珠宝创作中,投射对建筑的想象,美之于建筑之于珠宝,原来是同理可证。
If the architecture, after the light, rain, time left on its face marks, is still a classic beauty. So, diamonds, but in the years of grinding, experience, more transparent, shining. Designers and craftsmen always project the imagination of architecture in the creation of jewelry. It is the same with the beauty in architecture and jewelry.
当最初接触广州店项目时,设计师考虑如何整体合一,而又与众不同。对于建筑,设计师尊重初始的建构概念,尽量保持它的初心,与创造者内心的语言。
When I first approached the Guangzhou store project, the designer thought about how to integrate the whole and be different. For architecture, the designer respects the original construction concept and tries to keep its original mind and the inner language of the creator.
平面分析:—Plane analysis
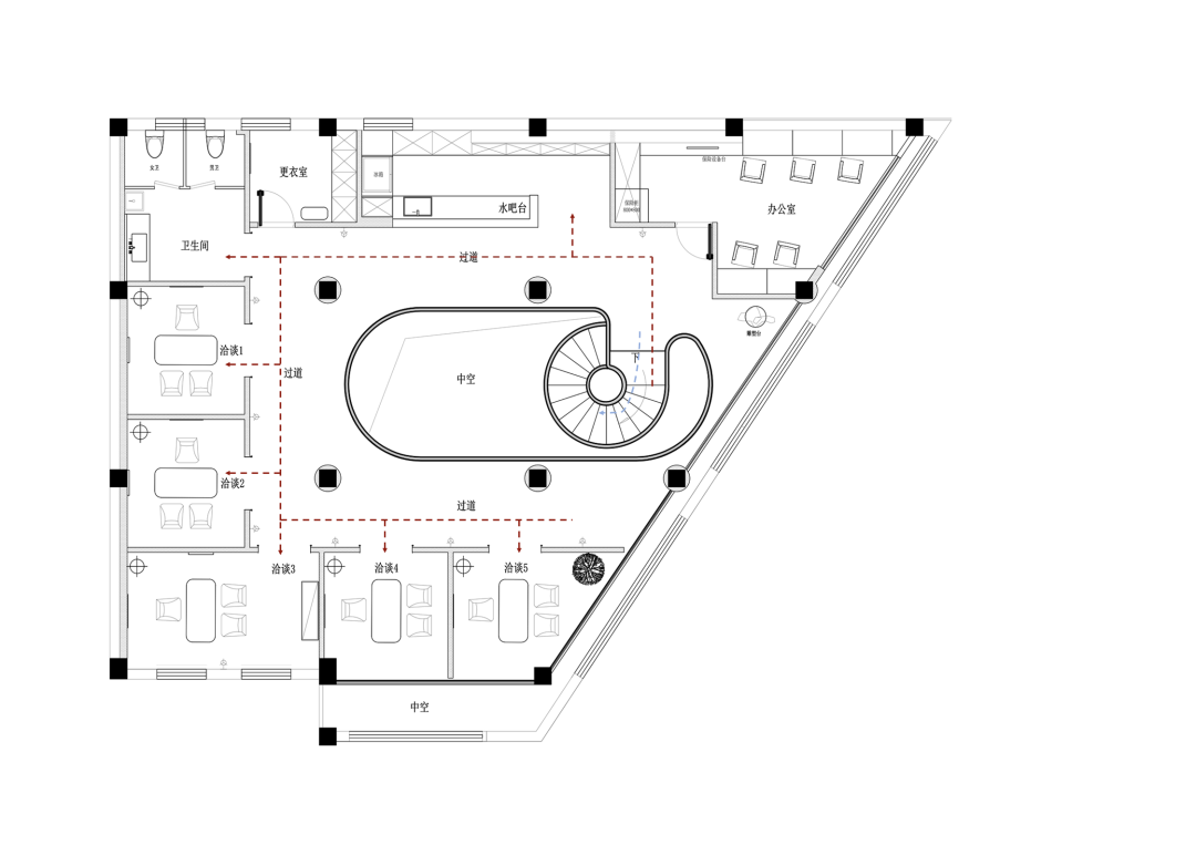
△一楼平面布局及动线△
△二楼平面布局及动线
△结构分析:
—Scenario For Structures
弧形,演绎着经典。—Arc, the interpretation of the classic。
随着现代美学的兴起,以及全球化的演进,我们对美学的认识,对文化的理解,都在相互影响。在经典传承与现代革新的矛盾之上,审视思考着艺术审美的差异化和共同体。
而弧形元素,从古至今,从宇宙天体到古老建筑,从世界领域至东方土壤,一直都象征着生命力与神秘,经典且永恒。
With the rise of modern aesthetics and the evolution of globalization, our understanding of aesthetics and our understanding of culture are all influencing each other. On the basis of the contradiction between the classical inheritance and the modern innovation, we examine and consider the difference and community of artistic aesthetics. Arc elements, from ancient times to the present, from cosmic celestial bodies to ancient buildings, from the world domain to the eastern soil, have always symbolized vitality and mystery, classic and eternal.
整体平衡 细节斟酌
—
Overall balance, detail
ROTASS 广州珠宝店的空间设计,结合其建筑本身特点,原建筑空间格局得以保护,延续弧形拱门元素,将空间间隔却又隐约通透。将自然光线缓缓引入空间,在窗户折射出光影痕迹。人形白色雕像,从弧形窗隐约透出,安静、沉静,仿佛拥有治愈力量,当阳光洒下,人们便在其中找到了庇佑。户外球状规则的绿植,如波形的排列组合,融合不断变化的喷泉,与仿佛一尊大型雕塑的建筑,融为一体。以规则和反曲线的形式,赋予设计动感的理念。
The spatial design of ROTLASS Guangzhou Jewelry Store, combined with the characteristics of the building itself, preserves the spatial pattern of the original building, continues the arc arch element, and makes the space spaced but vaguely transparent. The natural light is slowly introduced into the space, reflecting traces of light and shadow in the Windows.
The white humanoid statues, peeping out of the curved Windows, are quiet and serene, as if they have healing powers. When the sun shines, people find protection in them.
The outdoor globular regular greenery, such as the arrangement and combination of wave forms, integrates the constantly changing fountain and the building, as if it were a large sculpture. In the form of rules and inverse curves, give the concept of dynamic design.
室内将两层空间打通,以绸缎般的旋转楼梯连贯串联。一层主要为珠宝展示区,二层主要为洽谈区及休息区。合理的区域布局,增加空间利用率,同时满足品牌运营及接待管理,提升客户体验感。
Indoor two space get through, with the revolving staircase like silk, coherent series. The first floor is mainly for jewelry exhibition area, and the second floor is mainly for negotiation area and rest area. Reasonable regional layout, increase the utilization of space, while meeting the brand operation and reception management, improve customer experience.
入口接待台以金色为主调,水纹形态的玻璃背景,含蓄和均衡,崇尚豪华和气派。墙面设计以雕刻的线条和纹理,在规则又缜密的编排中,沉淀出巴洛克风格经典而永恒。
The reception desk at the entrance is mainly in gold tone, with a glass background in the form of water pattern, which is implicit and balanced, advocating luxury and style. The wall design with sculpted lines and textures, in the rules and careful arrangement, precipitate the classic and eternal baroque style.
艺术家将 ROTASS 珠宝设计手稿,绘制于墙面,自然的笔触,调动空间所有的线条、图案、形状和气韵,贯穿不同维度的视角和感知,完美演绎艺术的意趣。
The artist paints the ROTASS jewelry design manuscript on the wall. The natural brush strokes mobilize all the lines, patterns, shapes and charm of the space, through the perspectives and perceptions of different dimensions, and perfectly deduce the artistic interest.
装饰的风格魅力,并非只在其外形,还有对材料和工艺的极致要求。悬吊休息区上方的水晶灯,由专业工匠纯手工打造蝴蝶形态,结合 ROTASS 珠宝“破茧成蝶”系列,诠释爱情的基因密码。灯光柔和而下,精致、轻盈,仿佛一道白月光,温柔有力地披在身上。
The style charm of adornment, be not only in its appearance, still have the acme requirement to material and craft. The crystal lamp above the hanging rest area is handmade by professional craftsmen in the form of butterfly, which interprets the genetic code of love in combination with the ROTASS jewelry series "Breaking Cocoon into Butterfly". The light is soft and down, delicate, lightsome, as if a white moonlight, gently and powerfully drapery on the body.
蜿蜒旋转的楼梯,仿佛整个空间的心脏。每一寸阳光的温暖照耀,撩动着彼此的心跳。精工雕琢的白色大理石台阶,与黑色的铁艺栏杆,跌宕却相融,像落在琴键和琴弦上的静默,又宛如悄然流动的音符。
The winding and rotating staircase seems to be the heart of the whole space. Every inch of the warmth of the sun shining, stirring each other’s heart. The exquisitely carved white marble steps and the black iron railings are in harmony with each other, like the silence falling on the keys and strings of the piano, or like the notes flowing quietly.
拾级而上,二层环形黑色栏杆,以女王的皇冠为设计灵感,当珠宝灯倾泻,照耀着皇冠,犹如珠宝点缀其间,泛起流光溢彩的涟漪。随着光影变化,虚实转变,仿佛演绎着一部经典爱情电影。
Walking up the stairs, the second floor is lined with black railings, inspired by the queen’s crown. When the jewel lamp pours down, shining on the crown, just like the jewelry adorns it, creating ripples of streamers and colors. With the change of light and shadow, the transformation of reality, as if the interpretation of a classic love movie.
洽谈空间,延续拱门设计,将各个空间独立呈现,隐蔽而通透,神秘而未知。洽谈区的沙发椅,采用经典复古千鸟格纹,以贵族礼遇客户。墙壁悬挂着巴洛克绘画,戏剧性的构图,起伏波动,以鲜艳明朗的色彩,描绘着亘古不变的爱情故事。人类的丰富情感,自然的有机生命,文化的复杂情境,画作诗意的产物。
Negotiate the space, continue the design of the arch, and present each space independently, hidden and transparent, mysterious and unknown. The sofa chair of the negotiation area, using the classic retro thousand bird lattice pattern, with aristocratic courtesy to customers. Baroque paintings hang on the walls, dramatic composition, undulating, with bright and bright colors, depicting the eternal love story. The rich emotions of human beings, the organic life of nature, the complex situation of culture, and the poetic products of paintings.
在这个空间,设计师是非常规创造力的倡导者,自由摄取,将新古典和现代融合,营造拥有生命力的有机空间。保留巴洛克最经典的线条、几何、圆润,结合珠宝的坚硬、光泽、纯净,是柔与刚的和谐,并未将空间装扮得锋芒毕露,用数不清的巧妙细节,温婉平和地勾勒出空间的每一个场景。
In this space, the designer is the advocate of unconventional creativity, free ingest, the fusion of neoclassical and modern, to create an organic space with vitality. The most classic line, geometry, mellow, combined with the hard, luster, pure jewelry, is the harmony of soft and just, did not dress up the space is sharp, with countless clever details, gentle and gentle outline every scene of the space.
项目概况:
—
Project Overview
项目名称 | ROTASS 珠宝广州精品店
项目地点 | 中国 广州
项目面积 | 360㎡
项目时间 | 2020 年 11 月
设计公司 | XUNICA DESIGN
服务方式 | 设计+施工
装修造价丨150 万
主案设计 | 朱旭
项目团队 | 周鑫星、向东海
项目推广|彭梨
The project name | ROTASS jewelry boutique in guangzhou
Project site | guangzhou, China
Project area of 360 ㎡ | project
Completion time | in November 2020
DESIGN company | XUNICA DESIGN
Service | design + construction
Decoration cost: RMB 1.5 million
The main case design | Zhu Xu
The project team | Zhou Xinxing, XiangDongHai
Project marketing | Peng Li
-END-
客服
消息
收藏
下载
最近




































