查看完整案例


收藏

下载
▲ 点击上方蓝字,关注
【ACE 装饰】
get 最新案例分享~
欢迎关注与星标⭐
MINI X INTRO
对于当代年轻人而言,艺术和潮玩都是不可或缺的。一个颇具自我个性、潮流的空间,更能吸引年轻人前来体验。
本案坐落于泉州安溪,设计师以黑、金、红三种颜色搭配渲染,致力于打造一个现代轻奢高级会所,在空间上引入个性、潮、玩元素,让“活力”融入空间,尽显空间的生命力。
项目信息
项目地址丨Address:福建泉州 MINI 谜霓商行
设计单位丨Design:ACE 筑伦装饰
设计主创丨Designer:陈艺冰
设计风格丨Style:现代轻奢
设计面积丨Area:300㎡
时间丨Time:2022/8
PART01
——
玩来玩“趣” 新潮审美
门头
Doorhead
MINI 谜霓的门头设计为整个会所定下主基调,黑金的配色使空间奢华却又不失稳重。极简的门牌设计及内容清晰了会所定位,呈现出店面高级、舒适的品牌调性。
The MINI’s door design sets the main tone for the entire clubhouse, and the black and gold color scheme makes the space luxurious but stable. The minimalist door design and content clearly define the positioning of the clubhouse, presenting the high-end and comfortable brand tone of the store.
PART02——空间趣味 奇思妙想
前台
reception desk
初入 MINI 谜霓,首先映入眼帘的是一堵靠墙而置的黑金色名酒展示柜,精致高级感扑面而来。在此基础上,设计大理石肌理的摆放台放置高端名酒,并装饰以亚克力材质的展示柜,形成鲜明对比,凸显空间的潮玩个性。
When you first enter the MINI, the first thing that catches your eye is a black-gold wine display case against the wall, with a sense of exquisite and high-end. On this basis, the marble texture table is designed to place high-end famous wines, and the display cases decorated with acrylic material form a sharp contrast and highlight the trendy personality of the space.
PART03——艺术趣味 自然成趣
楼梯
stairs
楼梯处挑空的结构让空间多了开阔,平添了舒适,大面积的自然光,将整个空间点亮;
采
用亚克力
板制
成的旋转式吊灯
是空间的点睛之作,设计的潮玩
手办充满个性,
从涂鸦细节中流露出的青年潮玩气质,内敛却不克制,不动声色的丰盈着空间的每一瞬间。
The hollow structure at the staircase makes the space more open, adding comfort, and a large area of natural light lights up the entire space. The rotating chandelier made of acrylic board is the finishing touch of the space, the design of the hipster figure is full of personality, the youth hipster temperament revealed from the graffiti details, restrained but not restrained, quietly enriching every moment of the space.
PART04
——
围坐畅饮 肆意人生
会客厅
Receptionarea
会客区跳脱出任何的制式、风格,现成趣味,灯光设计上以无主灯为主,搭配展示柜中的灯带设计,营造了神秘的光影感,给用户带来别致的空间体验。
醒目的潮玩手办陈列于藏酒之列,黑白灰的色调,在灯光的衬托中显出其轮廓与线条,为空间注入更浓厚的潮玩个性。
The reception area jumps out of any standard, style, ready-made fun, the lighting design is mainly based on no main light, with the light strip design in the display cabinet, creating a mysterious sense of light and shadow, bringing users a unique space experience. The eye-catching trendy figure is displayed in the wine collection, and the black, white and gray tones show its silhouette and lines in the lighting, injecting a stronger hipster personality into the space.
PART05
——
纳高贵之行 建空间之意
大包厢
Large box
小包厢 Small box 隔层更为私密的包厢空间内,大面积白色墙板包裹的氛围,以丝毫不冗余的表现手法,与轻奢质感的大理石基底相辅相成。桌椅、茶具、绿植等各种装饰下缓缓道出空间尊贵而高雅的禅意韵律,同时融入传统生活的“弈棋”乐趣,打造独具个性的潮玩空间。
In the more intimate compartment space, the atmosphere wrapped in large white wall panels is complemented by a light and luxurious marble base with no redundancy. Under various decorations such as tables, chairs, tea sets, and green plants, the noble and elegant Zen rhythm of the space is slowly expressed, and at the same time, it integrates the fun of traditional life "playing chess" to create a unique and trendy play space.
PART06
优雅精致 奢华空间
一楼卫生间
Bathroom on the first floor
隔层卫生间
Bathroom nextfloor
卫生间延续了空间上的主色调,设计有微金属质感的背景,洗手台精致优雅,镜子周围的光散发出柔和的气息,不仅起到了照明作用,更增添了空间的美感。
The bathroom continues the main color of the space, designed with a micro-metallic background, the washbasin is exquisite and elegant, and the light around the mirror exudes a soft atmosphere, which not only plays a role in lighting, but also adds to the beauty of the space.
一品酒香,消却过往。一瓶酒烈,退却迷惘。不理世间纷扰,畅游天地之间,三五知己好友,坐云望月,赏花品酒,自在逍遥。
//
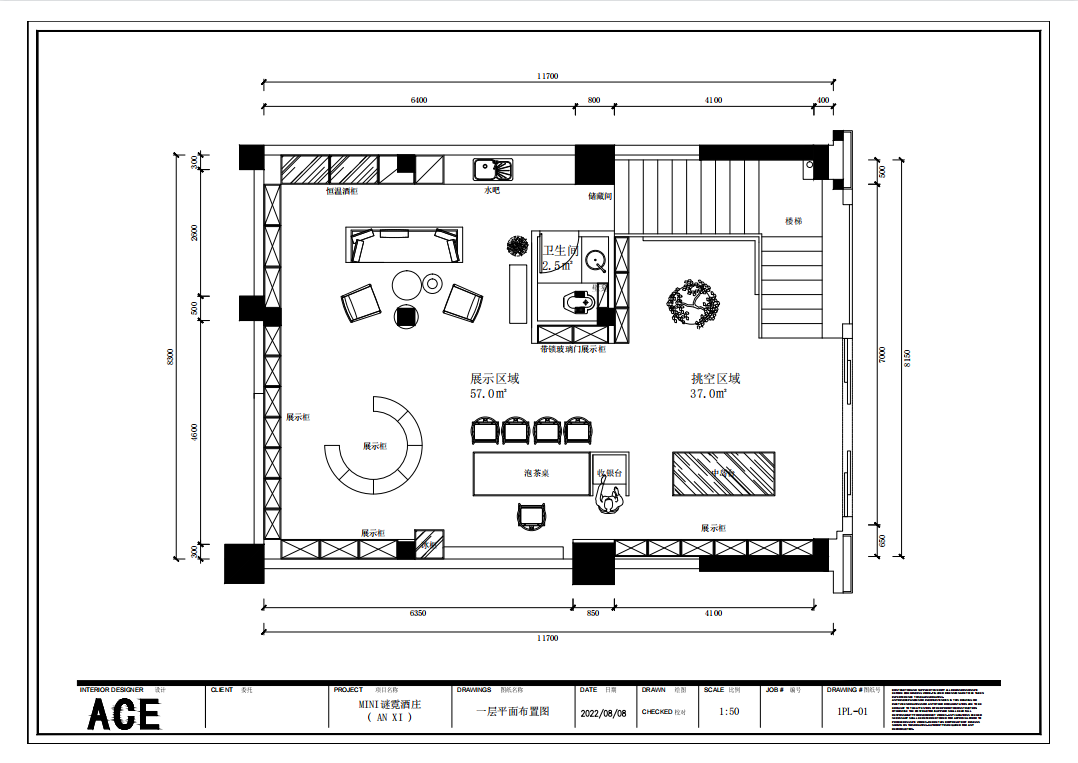
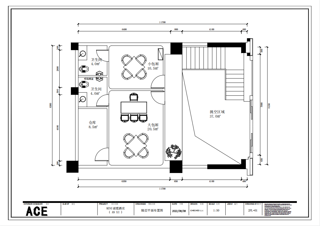
平 面 图
DESIGNPLAN
▲ 一层
▲ 隔层
往 期 推 荐
1. ACE 设计 | 极简原木,一场心与静的对话
2. ACE 设计 | 125m²奶油风居所,寻找生活的真意!
3. ACE 设计 | 简而有味的宁静居所,邂逅自然之美
END
客服
消息
收藏
下载
最近




























