查看完整案例


收藏

下载
- 家拥有灵魂
它独特、专属、自在
我们把家当成在世界上可以安全栖息的角落
放下自我,不再掩饰
享受家人之爱
一切的装饰最后都回归到居住者身上
简约或繁复,纯粹或丰富
家的气质便是主人的气质
本案为双层居所,一层为起居空间,二层为家人居住、休憩的空间。设计师依循居住者在空间里的生活习惯和行为变化,对功能进行合理规划,通过视觉传达现代大众的审美喜好,将舒适的体验感贯穿在每个空间,再用艺术传达精神和个性。
项目信息:
项目地址丨Address:福建泉州安溪百福豪城 21#2102
设计单位丨Design:ACE 筑伦装饰
设计主创丨Designer:陈晓燕
设计风格丨Style:现代
设计面积丨Area:145㎡
时间丨Time:2022/05
01 客/厅
LIVING ROOM
餐客、阳台一体,打造宽境横厅,打破空间的界限,扩大了整个房子的公共活动空间。大面积的落地窗使室内光线充足,简雅白净的窗帘显露律动感,再透过绿意植栽、柔和灯饰丰富空间层次。
Diners and balconies are integrated, creating a wide horizontal hall, breaking the boundaries of space and expanding the public activity space of the entire house. The large floor-to-ceiling windows make the interior full of light, the simple white curtains show a sense of rhythm, and then enrich the spatial layers through green planting and soft lighting.
02阳/台
BALCONY
阳台区域与书柜、书桌的结合为居住者创造了一个舒适的办公环境,同时配备了基本的烘洗一体机和洗衣池,既满足居住者的多样化需求又丰富了空间的功能。
The combination of the balcony area with bookcases and desks creates a comfortable office environment for the occupants, while equipped with a basic washing machine and a laundry pool, which not only meets the diverse needs of the occupants but also enriches the functions of the space.
03 厨/房
KITCHEN
U 型的厨房布局让操作动线更加流畅,使得烹饪变得轻松自在。厨房的配色注重舒适和现代感,低调且含蓄;定制的一体式橱柜将所有电器嵌入柜体,保持了统一的现代风格。
The U-shaped kitchen layout makes the operating line smoother and makes cooking easy. The color scheme of the kitchen pays attention to comfort and modernity, understated and subtle; The custom integrated cabinets have all the appliances embedded in the cabinet, maintaining a uniform modern style.
04卧/室
BEDROOM
主卧
Master Bedroom
主卧延续整体配色风格,简约立面和经典色块打造舒适场域。利落线条延展空间,皮质床体柔软舒适,点缀艺术形状的灯具,在不同光源里静躺,悠闲感受极简治愈力...
The master bedroom continues the overall color scheme, with a minimalist façade and classic colour blocks creating a comfortable field. The space with clean lines extends, the leather bed is soft and comfortable, the lamps and lanterns decorated with artistic shapes, lying still in different light sources, leisurely feeling the minimalist healing power...
次卧
Second bedroom
次卧与主卧的风格相一致,卧室的床头放置在设有窗户的一面,阳光透过窗户洒在床上,温暖舒适。
The second bedroom is in line with the style of the master bedroom, with the head of the bedroom placed on the side with the window, where sunlight shines through the bed, warm and comfortable.
孩子房
Kids bedroom
儿童房以低饱和度颜色的对比来延续温馨与鲜活,色彩的组合,带有孩子特有的自由与纯真。临窗设置书桌放置电脑,满足孩子的学习与社交需求;摆放上孩子喜爱的手办和玩偶,打造安全柔软、舒适温馨的玩乐空间。
The children’s room uses the contrast of low-saturation colors to continue the warmth and vividness, and the combination of colors carries the freedom and innocence unique to children.
Set up a desk and place a computer in the window to meet the children’s learning and social needs; Place your child’s favorite handmade dolls to create a safe, soft, comfortable and warm play space.
衣帽间
Cloakroom
走进衣帽间,白色嵌入式柜体被黑色玻璃面分隔开来,合理规划收纳位置,衣物分类整齐有序。沉稳配色透露品味格调,简洁组合实用大气,梳妆台上的线灯仿若点睛之笔,给空间增添了一抹光彩与魅力。
Entering the cloakroom, the white recessed cabinet is separated by the black glass surface, the storage position is reasonably planned, and the clothing is sorted neatly and orderly. The calm color scheme reveals the taste style, the simple combination is practical and atmospheric, and the line lamp on the dresser seems to be the finishing touch, adding a touch of brilliance and charm to the space.
05卫/生/间
TOILET
公卫 Publictoilet 卫生间的淋浴区与马桶区通过玻璃门的阻断做到干湿分离,淋浴间在细节上对地砖进行了防滑处理,同时设计壁柜放置洗浴用品,给予居住者舒适自在的使用体验,在视觉上巧妙传递出居住者的高调品味。The shower area of the bathroom and the toilet area are separated from wet and dry by the blocking of the glass door, and the shower room is anti-slip on the floor tiles in the details, while the design of the wall cabinet to place toiletries, giving the occupants a comfortable and comfortable experience of use, visually cleverly conveying the high-profile taste of the occupants.
主卫
Main toilet
主卫以简洁清雅为空间基调,与主卧相得益彰。明快通透的玻璃门隔断淋浴区与马桶区,在视觉上具有扩大空间的效果。相比之下,洗手台下方嵌入式收纳柜体的设计成了卫生间的特别之处。
The main bathroom is based on simplicity and elegance, which complements the master bedroom. Bright and transparent glass doors separate the shower area from the toilet area, which has the effect of expanding the space visually. In contrast, the design of the recessed storage cabinet under the sink has become a special feature of the bathroom.
如果说空间婉转低诉着人的故事,那么设计师就是这个故事的“心灵捕手”。好的空间,为人而造,剥离掉所有的装饰手法之后,它浮现出居住者的独特灵魂。
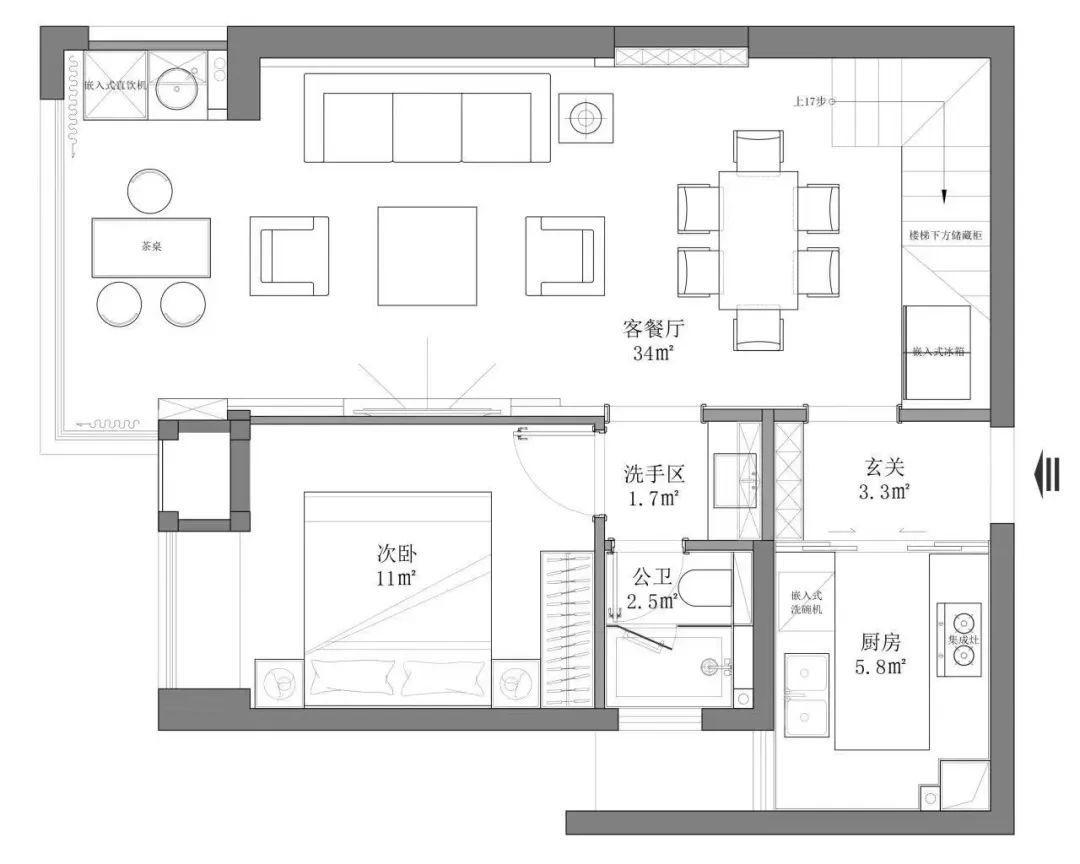
平 面 图
DESIGNPLAN
- END
客服
消息
收藏
下载
最近


















