查看完整案例


收藏

下载
有人说,世界诸多经典影片,最爱的是《教父》,最恨的也同样是它。爱它,是因为它看似黑暗的世界,却能影响你我的人生,看似无奈的境遇,却会告诉你我不要轻言放弃;恨它,是因为它将人性的真实和残酷放在我们面前,面对生活、命运的逼迫,最后一身胆量也会化作一声叹息。命运总有万千方式令你万箭穿心,生活却只用一次机会便令你人间清醒。
《教父》与其说是一部描写家族复仇的黑帮电影,不如说是一部男人成长的百科全书。
那些失去的,就别再纠结,珍惜现在的拥有;那些过去的,就别再遗憾,保留此时的希望。
项目信息
项目地址丨Address:福建泉州安溪·回味往事 LIVEHOUSE
设计单位丨Design:ACE 筑伦装饰
设计主创丨Designer:赵浚程
品牌设计丨Brand Design:Stan 韩超
设计风格丨Style:哥特风
设计面积丨Area:
1F 240㎡ 2F 220㎡
时间丨Time:2021/06
门头
The door first
回味往事 LIVEHOUSE 是我们基于《教父》这部黑帮经典之作的灵感来源所创作的哥特式环境空间设计,提取哥特风格中瑰丽、复杂、浮夸等元素,强调空间上的垂直和光线。
回味往事 LIVEHOUSE 的场景始终贯穿着暗色调,充满着诡异却又十分温馨的氛围,反差感十足。
哥特崇尚浓郁阴暗色彩,复杂又华丽的装饰。因此整体以黑红色为基本色,点缀其中的古铜色给人以诡谲叛逆的感受,充满个人色彩。
哥特墙绘 Gothic wall paint
走廊 The corridor
走廊壁画 Corridor murals
过道 Aisle
包厢 box
吧台 The bar
卡座区 Booth area
散座区 Seat area
舞台区 The stage
洗手间 The bathroom
维纳斯雕塑
Venus sculpture
位于安溪县城外的这座小酒馆,仿佛是一个巨大的礼物盒子。推开门,你会发现黑红、金属、皮质的装饰,共同为这个空间注入奢华的层次感,这便是哥特风(Goth)的回味往事 LIVEHOUSE。
效 果 图
R E N D E R I N G
吧台 The bar
卡座 The booth
包厢 Thebox
卫生间 Toilet
角落
Corner
回味往事
LIVEHOUSE
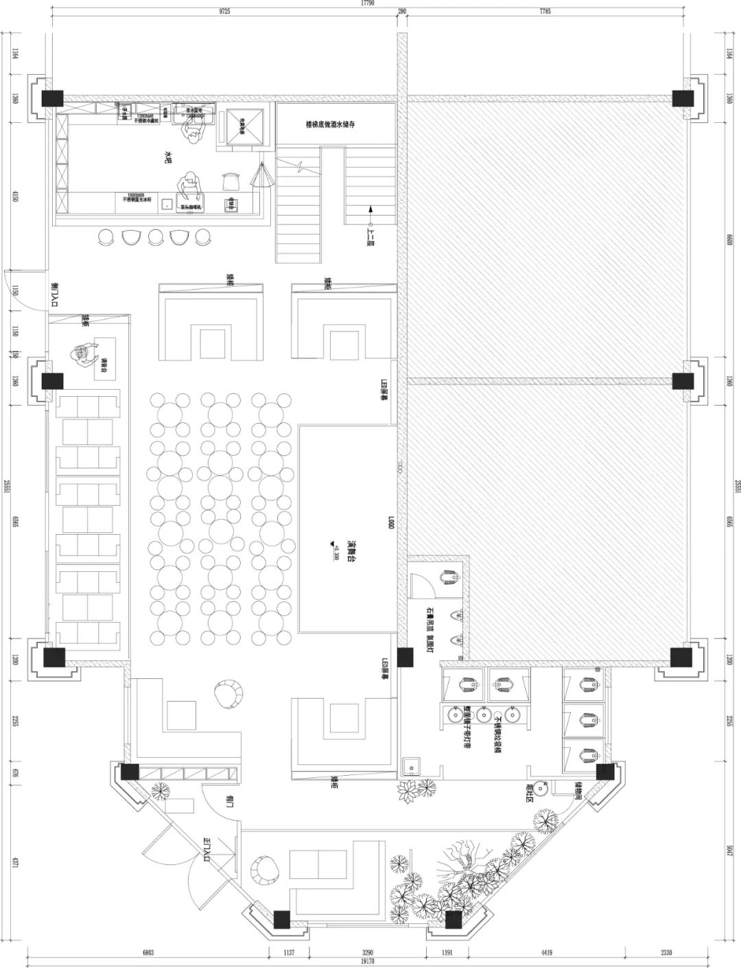
平面图
DESIGNPLAN
一层平面布置图
二层 平面布置图 END
客服
消息
收藏
下载
最近







































