查看完整案例


收藏

下载
以一种色调贯穿始终,比色彩斑斓的人生高尚的多。——余秋雨《文化苦旅》
项目信息
项目地址丨Address:福建泉州安溪御峰别墅区 1703
设计单位丨Design:ACE 筑伦装饰
设计主创丨Designer:陈艺冰
设计风格丨Style:现代
设计面积丨Area:280㎡
时间丨Time:2021/11
尽显雅致的客厅
ELEGANTLIVING ROOM
不同于将客厅安置在首层的传统设计理念,该别墅的客厅设计于三四层之间,客厅与楼层之间完整表达整体的设计风格,整体简洁明净,现代设计手法处理空间尺度,低饱和度色系,将当代人的审美情趣融合在这座别墅私宅中。
Different from the traditional design concept of placing the living room on the first floor, the living room of the villa is designed between the three or four floors, and the living room and the floor completely express the overall design style, the overall simplicity and purity, the modern design methods deal with the spatial scale, low saturation color system, and integrate the aesthetic taste of contemporary people in this villa private house.
品味生活的艺术气息 TASTETHE ARTISTIC FLAVOROFLIFE
品酒区 Wine tasting area 位于一层的影音区、品酒区承载了家庭观影、品酒品茶的闲趣生活,一步一景悠然自得。该空间给予居住者在午夜时分可以享受的一份静谧恬淡,粗粝自然的大理石吧台与细腻现代的酒柜展陈相得益彰,实现了现代与东方的对话。
Located on the first floor, the audio-visual area and the wine tasting area carry the leisurely life of family movies, wine tasting and tea tasting, and step by step. The space gives occupants a tranquil and idyllic atmosphere that can be enjoyed at midnight, and the rough and natural marble bar counter complements the delicate and modern wine cabinet display, realizing the dialogue between modern and oriental.
美味品赏的餐厨空间 TASTEFOOD’SKITCHENSPACE
厨房 Kitchen
餐厅 restaurant 餐厨区域以米色、茶白、月灰等饱和度偏低的色彩为主,打造净素而充满细节的美食品赏空间;在这里,有香浓的烟火,有相伴的温情。囿于美食之间,万物皆希望,万物皆憧憬。当人们抛弃一切杂糅的念想儿专心于餐盘杯盏间的感受时,美馔带给家人的意义是传递感情和治愈心灵。
The kitchen area is dominated by low-saturated colors such as beige, tea white, and moon gray, creating a pure and detailed food appreciation space; here, there are fragrant fireworks and accompanying warmth.
Confined to food, everything is hoped, and everything is longed for. When people abandon all their mixed thoughts and concentrate on the feelings between the plates and cups, the meaning of good food to the family is to convey feelings and heal the heart.
绽放优雅的主卧 THE ELEGANTBEDROOM
主卧 MasterBedroom
次卧
Second bedroom
顶层的主卧室,中性的色调,柔和的材质,圆融的质感,半透明材质的衣帽间,与主卧私密区域形式间隔,功能区分明确。
次卧延续高品质的空间基调,精心挑选的布艺床品和配饰充满了对美的所有想象,精致的气韵在此间静谧地生长,让内心得以片刻的安放与升华。
The master bedroom on the top floor, neutral tones, soft materials, round texture, translucent material cloakroom, and the private area of the master bedroom are separated in form, and the functions are clearly distinguished.
The second bedroom continues the high-quality spatial tone, the carefully selected fabric bedding and accessories are full of all the imaginations of beauty, and the exquisite charm grows quietly here, allowing the heart to be placed and sublimated for a moment.
卸下疲惫的个人空间 FADEDTHETIREDPERSONAL SPACE
淋浴房+私卫
Shower room and toilet
卫生间巧妙搭配自然质感的石材以及玻璃、灯光元素,赋予空间生动的魅力。回到家中在此处能够轻松褪去一身的疲惫,情绪也随之被安抚舒展。
The bathroom is cleverly matched with natural stone, glass and lighting elements, giving the space a vivid charm. The exhaustion that can easily fade here at home is soothed, and the emotions are soothed and relaxed.
晾晒阳台
Drying Balcony
阳台与起居室之间用玻璃门隔断,在视觉上扩大空间。内置洗衣机,便于晾晒衣服。巧妙运用贴合墙壁的剩余空间,设置嵌入式柜体,方便居住者收纳被子、衣物、鞋子等用品。
The balcony is separated from the living room by a glass door, visually expanding the space. Built-in washing machine for easy drying of clothes. Make clever use of the remaining space that fits into the wall, and set up a recessed cabinet to facilitate the occupants to store quilts, clothes, shoes and other supplies.
享受惬意的一方天地 ENJOY THECOZY TERRACE
露台
Terrace
休闲阳台,给自己、家人和朋友一处度假小天地。摇坐于此,透过阳光穿透手指间的第一感觉,享受一刻平淡简朴之美,不去干预自然的状态,沉寂于带着空寂感的时空。
Relaxing balcony for yourself, family and friends. Sit here, penetrate the first feeling between your fingers through the sunlight, enjoy the beauty of a moment of plain simplicity, do not interfere with the state of nature, and meditate on time and space with a sense of emptiness.
我
居于无限可能之中,一个家,胜过散文。
——狄更生
平 面 图
DESIGNPLAN
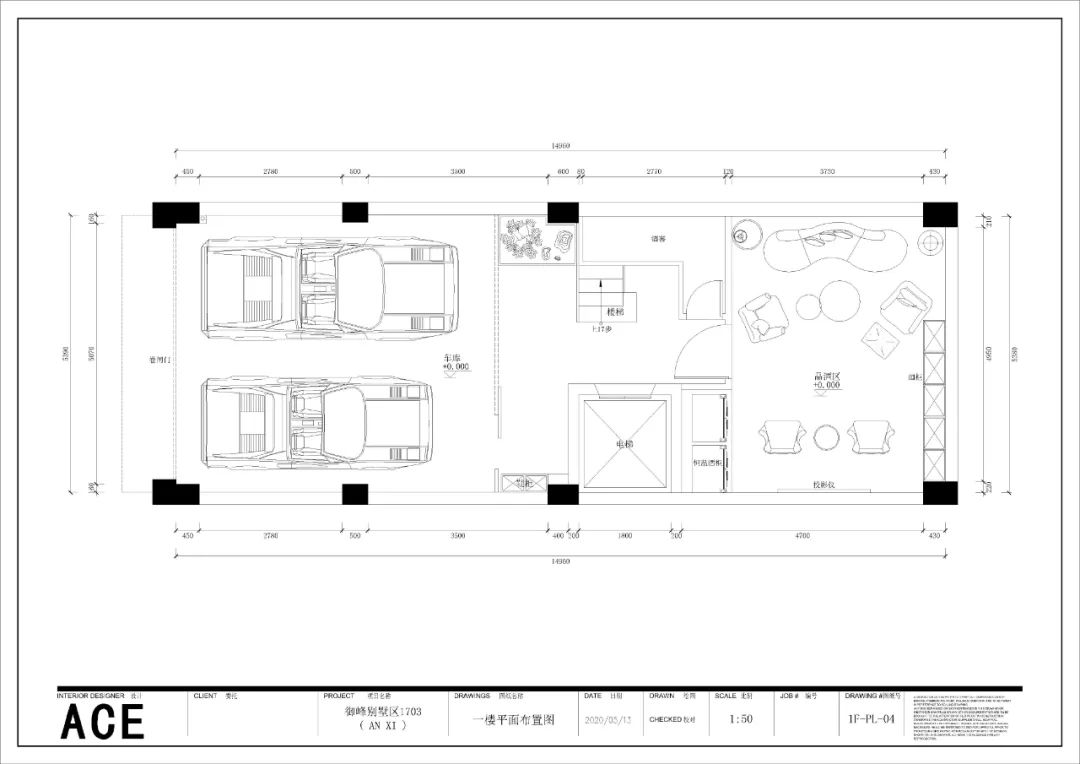
一层平面图
二层平面图
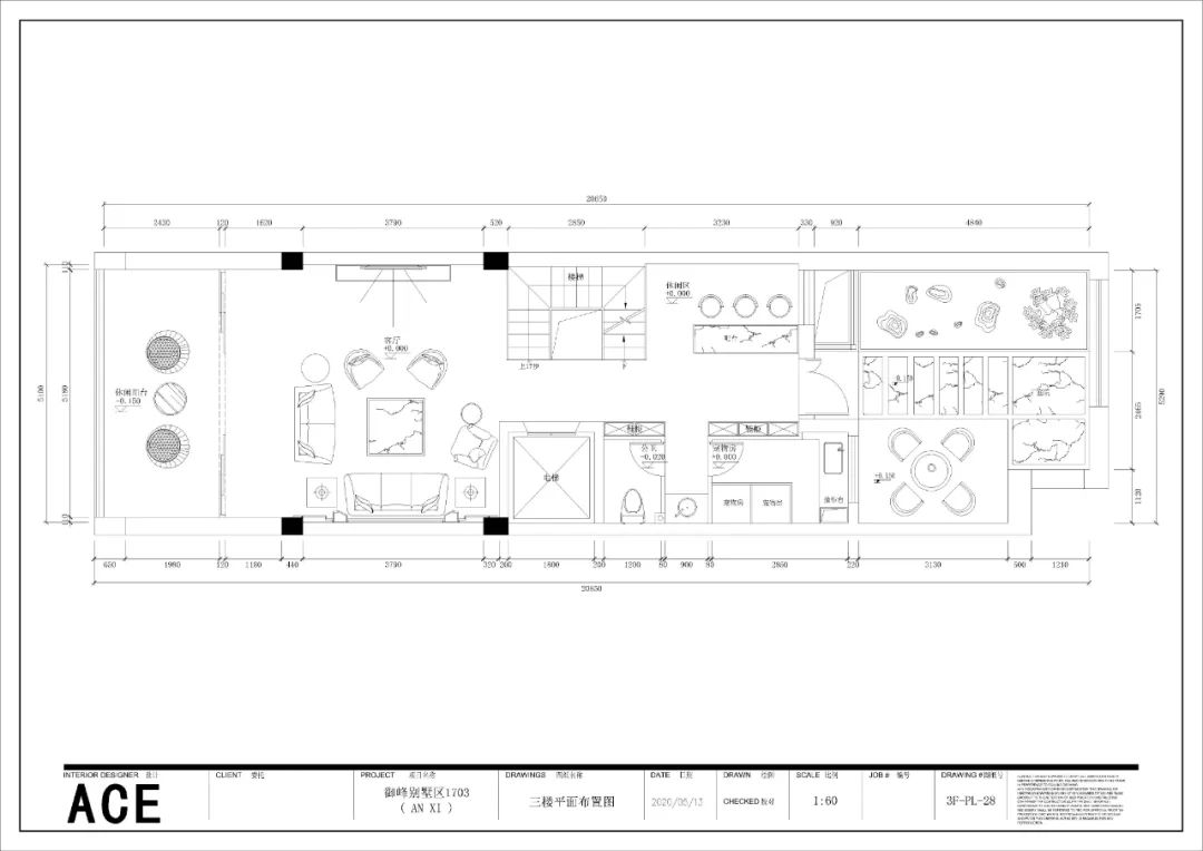
三层平面图
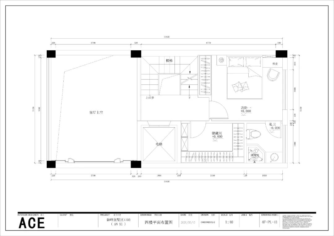
四层平面图
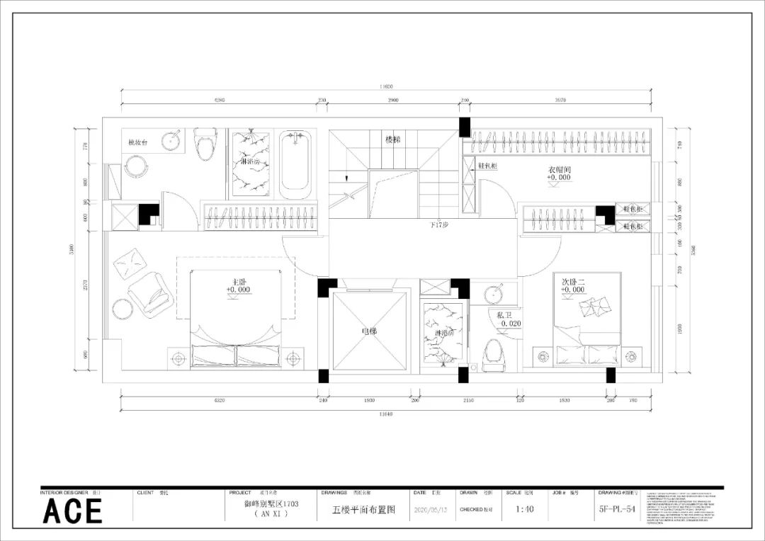
五层平面图
- END
客服
消息
收藏
下载
最近






















