查看完整案例


收藏

下载
- “除了艺术之外,没有更妥善的逃世之方;而要与世界联系,也没有一种方法比艺术更好。”——歌德
- 本案为一户四房的居所,以其简约的空间和雅致的元素为特色,共同构成了一个温暖舒适的环境。精选的不规则几何艺术吊灯点缀在整个空间中,创造出富有表现力的视觉表达,时而为这个家的精致内饰增添一丝俏皮感,进一步提升空间质感。
项目信息
项目地址丨Address:福建泉州安溪尚学领地 16#1T2302
设计单位丨Design:ACE 筑伦装饰
设计主创丨Designer:陈艺冰
设计风格丨Style:现代
设计面积丨Area:150㎡
时间丨Time:2021/11
客厅 LIVING ROOM
客厅采用简洁利落的硬装基础,搭配色彩柔和的软装陈设,温柔而硬朗,为屋主打造安逸自在的生活空间。沙发矮、胖、软、萌的设计特点很利于与人建立“信任感”,使人完全放松下来;两把新中式的椅子,一顶不规则几何形状的吊灯点缀了这个简约的空间,为客厅增添了一抹雅致。
The living room adopts a simple and neat hard-set foundation, with soft furnishings with soft colors, gentle and tough, creating a comfortable and comfortable living space for the owner. The design features of the sofa are short, fat, soft and cute, which is conducive to establishing a "sense of trust" with people and making people completely relaxed. Two new Chinese chairs and an irregular geometric chandelier decorate this simple space, adding a touch of elegance to the living room.
过道 THEAISLE
客厅-餐厅和客厅-阳台之间,都没有用实体墙进行分隔,但是通过玄关、过道与厨房的设置,实现了视觉上的功能区域划分。
Between the living room, the dining room and the living room, the balcony, there is no physical wall to separate, but through the entrance, aisle and kitchen settings, the visual functional area is divided.
餐厅 RESTAURANT
四方食事,不过一碗人间烟火。
——汪曾祺
餐厅将餐桌与岛台融为一体,增强用餐便利性,二者材质、颜色、高低上均错落开来,形成视觉上的层次感。自带轻奢属性的棕色、灰色毛绒质靠椅,搭配精致的酒柜墙体,与极具艺术感的灯光相得益彰,为整个餐厅营造了“雅奢”的意境。
Four-way food, but a bowl of human fireworks.
——WangZengqi
The restaurant integrates the table and the island to enhance the convenience of dining, and the materials, colors, and heights of the two are staggered to form a visual layering. The brown and gray plush chairs with light luxury attributes, combined with the exquisite wine cabinet wall, complement the artistic lighting, creating an "elegant luxury" mood for the whole restaurant.
卧室
THE ELEGANTBEDROOM
主卧
Master Bedroom
主卧在空间上延续极简和雅致的理念,没有多余的装饰物件。飘窗一隅在有限的尺度扩容空间张力,将光线纳入方寸之间,尽显扩张与包容。大气的地板纹理加上不规则的空间设计,在这里铺陈开来,展现出居住者的高品位追求。
The master bedroom continues the concept of minimalism and elegance in space, without superfluous decorative objects. The corner of the bay window expands the spatial tension at a limited scale, incorporating light into the square inches, showing expansion and inclusion. The atmospheric floor texture coupled with the irregular space design is laid out here, showing the high-grade pursuit of the occupants.
次卧
Second bedroom
次卧与主卧的风格相一致,光线透过小窗户,使得整个空间明亮而又开阔,丰富了层次感。还设置了精致的透明柜体可供女主人置放衣物、包包等用品。
The second bedroom is in line with the style of the master bedroom, with light streaming through the small windows, making the entire space bright and open, enriching the sense of layering. There is also a delicate transparent cabinet for the hostess to store clothes, bags and other supplies.
长辈房 Elderly bedroom 长辈房以沉稳大气为主题,采用了简洁明净的温暖基调,布艺的床头和皮质的床头柜,呼应着线形灯具,细述居所的温度与品质。通透的采光得益于平地的落地窗,给长者最温柔的体贴。
With the theme of calm atmosphere, the Elder Room adopts a simple and clear warm tone, the fabric bedside and leather bedside table, echoing the linear lamps, detailing the temperature and quality of the residence. The transparent lighting benefits from the floor-to-ceiling windows on the flat floor, giving the elderly the most gentle consideration.
孩子房 Kids bedroom 儿童房运用明亮色彩和主题装饰凸显孩子的个性,增加空间的趣味。以兔子为主题,粉白色为主调,象征着孩子的童心,给予空间温暖、可爱的时尚浪漫感。
The children’s room uses bright colors and theme decorations to highlight the child’s personality and increase the fun of the space. With rabbit as the theme and pink and white as the main tone, it symbolizes the child’s childlike heart, giving the space a warm, cute fashion and romantic feeling.
卫生间 TOILET
公卫 Public toilets
主卫 Main toilet 卫生间采用了干湿分离的方式,利用玻璃屏将湿气有效隔绝,保证马桶区和梳妆区的干燥与洁净。两边都设计了充足的收纳空间,让物品摆放更整齐有序,视觉上的整洁提升幸福感。
The bathroom adopts the method of dry and wet separation, and uses the glass screen to effectively isolate the moisture and ensure the drying and cleanliness of the toilet area and the dressing area. Both sides are designed with ample storage space to make the items more neat and orderly, and the visual neatness enhances the sense of happiness.
世间万千,没有任何一种美丽永不凋零,唯有对生活的热爱永不褪色。
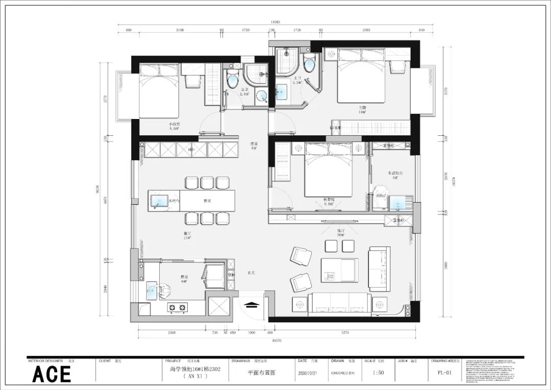
平 面 图
DESIGNPLAN
-
END
客服
消息
收藏
下载
最近





















