查看完整案例


收藏

下载
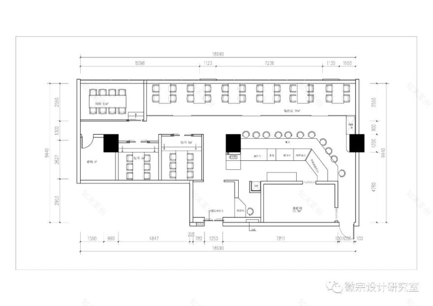
项目概况/项目名称/晓寿司日料店建筑面积/168.8平方米项目地址/郑州市郑东新区雅宝大厦2号楼设计公司/徽宗设计研究室主案设计/姚清轩设计总监/侯豫设计团队/朱琳何微李荣静刘明帅马百向摄影/李研彤撰文/刘明帅主要用材/乳胶漆马来漆镀铜钢丝网木饰面地砖透光石硬包设计日期/2018年 1月施工日期/2018年 3月~4月中旬一部《孤独的美食家》看饿了多少个缺少温暖的胃,在闲散的时间找一处小店,仔细咀嚼食物,尽情享受味觉上带来的幸福,我想,那么多人开始爱上日料,大概就是这个缘由吧。食物、环境、器皿,传达出的那份认真,就算是一个人,也不会觉得孤独。平面 / DESIGN
入口 /DESIGN拂晓之处,如山涧,似清溪,简洁、扩张,细腻、粗狂。每一处对比都有一段留心的对白,每一个基调都有一处文化的意蕴,意为素雅、静谧。纵横交错,交响觥筹,轻拨一曲琵琶语,隐匿在日料的长河里。
我愿与山涧,和清溪,在点点透光之后的清晨,在雨雪深深的月圆,与你相遇。
室内/DESIGN
闲步玄关,我愿安静仰望,留下一波最好的梦,你好,富士山/ふじさん,我愿在你的静谧之中去聆听最古老的文化,去听诉你最神奇的遥远。你是否也在如我一般,深深的感受着我们所带来的美丽,为你的轻纱拂袖一面,更新着的姿态若隐若现,我愿如你,轻轻地,只是就这样的伫立与君共识。如火焰,似木棉,相融着室内外,你是否愿意推开一扇门,来为我们讲述你的心情,是浪漫亦或是美好。
暖色系的灯带,增加着深夜的氛围,地台式的对话,让我可以更高的追寻你,空间的柔和木饰面,似乎在为热爱生活的你给以温柔以待,愿你想念,留白,幸福。
移步空间,线条的轮廓在灯光的映衬下,飘渺,柔和。大面积的深色系地面,在光与影的调和之中,质朴,庄严。线条的比例在窗户的开合之中,若隐若现的犹抱琵琶半遮面,单纯唯美,给人驻足,仰望与寻找。
我想走在这里,轻轻的和你共饮,飘渺、旋转,望着你最美的轮廓,望着你如樱花的陶醉,最浪漫的时光只想与你,舌尖相触,美酒相加,醉梦之中的相识,与你在晓寿司。
视觉之处,于吧台区:轻吻一杯浊酒,蓦然闲坐,弥留的清酒味与师傅手中的料理在空气中相互的碰撞摩擦,此时此刻你在想些什么?一个人?一些事?
凝望的空间若即若离,演变的隼木结构与吧台黄金分割,随之律动的光晕在相互交错的结构之中穿梭,似乎在框景的基调之中,内心涌起过往,泛着涟漪,如果你是我,是否如我一般,期望美味的料理随之觥筹交错的酒杯,想读懂和你最好的故事。
昨日雪如花,今日花如雪。轻轻走过一端的尽头,指尖滑过如你一样的气息,樱花纷飞,在味蕾的消融中,走进与你相识的季节,微风轻抚,你如雪的肌肤,你是那么的美丽,我只愿轻轻地看着你,仿佛隔着纱的两地之集。山樱如美人,红颜易消歇。叠峦式起伏的金属网,在音乐的变化之中,空气似乎亦有了节奏感,玲珑闪现,璀璨,斑驳。和你静坐在围合的空间里,夜深,酒醒,人渐渐淡去,透过斑点的萤火闪闪,随着飘落的樱花,念念不忘的醉。
一束光,拂起我秀卷的长发,清饮一杯与你的留恋,吟唱一首和你的轻抚,感触在舌尖,交织在胃蕾。所有的盛世美艳,倾尽我全部的爱慕。
一群人,举杯邀明月,散座在披风的隐匿之中,褶皱,凌乱,却是这么些青年在放荡不羁的夜里轻语低沉,我只想静默聆听,虽有内心不寂的孤独,虽然是轻狂年少的不羁。在这里,我想放下所有的悲喜,念着最初的自己。而你,大可一曲琵琶,倚楼物语。
那一次,你问我,我是否在梦里见过你,那一刻,眷恋充溢。
这一次,我想说,相遇,与你的料理。
徽宗设计研究院 HUIZONGDESIGN
徽宗空间设计研究室创立于2014年,是一家立足于中国郑州的多元化建筑设计公司。徽宗设计提供国际化的建筑、室内、整体规划以及平面设计服务。公司目前的项目分布在很多不同的城市,拥有来自全国各地的员工,不同文化背景组成了徽宗的设计团队,正是团队的差异独特性增强了我们的设计理念:以全球化的观念结合多元、重叠的设计理念来创造一个新的建筑范例。
徽宗设计始终认为研究是设计的一种有力工具,因为每个项目都具备有其特有的背景。对规划运作、地点、功能和历史等进行细致深入的研究是创造严谨作品不可或缺的要素。在研究的基础上,徽宗设计致力于建筑与经验、细节、材料、形状及灯光的积极互动,而不是单纯地遵照模式化刻板风格。每个项目背后的最终成功之处都是通过建筑本身外观形象所体现出来的意义而得到淋漓尽致的体现。
客服
消息
收藏
下载
最近
























