查看完整案例


收藏

下载
前言
14 年 7 月初到荷兰访学,在展示荷兰现代建筑发展沿革的建筑协会展厅中见到合作导师 Dirk Sijmons 在 1986 年的 Ooievaar 规划,这在几乎清一色的建筑师作品中极为引人注目,随后一段时间内 Sijmons 教授给我讲述了从框架规划到层模型的发展,受益良多。规划的形式和过程也可以被理解为城市或景观的空间和时间,而这个时间既包括了城市或景观,也包括了规划的实现方式。在规划越来越多的关注利益相关方的平衡时,层模型或许能带给我们新的借鉴。感谢 Sijmons 教授提供的一手资料和帮助,感谢熊亮老师对本文的建议。
——郭巍
01 荷兰:三角洲的传统与新挑战
荷兰大部分国土可以视为莱茵河、马斯河和斯尔特河的三角洲,在敏感的水环境下,荷兰的建成环境史就是“与水争地”的历史。荷兰人基于共同水务利益结成社会团体参与水利建设与水务管理。为了追求土地利用最大效益,他们将土地有逻辑地划分,最终形成了大规模圩田景观。整体性水管理及圩田开垦的传统影响着荷兰人工建成环境的方方面面。荷兰城镇、乡村多经规划且在形态、尺度上与圩田景观结构契合。“公众参与”、“整体规划”、“追求实用”等意识也从早期的土地规划与设计中传承了日后的风景园林规划设计中。
20 世纪初,须德海工程使荷兰中部洪泛风险大大降低。但 1953 年大洪水仍导致荷兰人口和财产的重大损失。灾后,水利专家提出了“三角洲工程”方案。然而,单功能的工程化方案带来了新问题,遭到众多利益相关方的反对。21 世纪到来前的荷兰面临着空间规划转型的需求,荷兰风景园林界由此迎来了新的机遇。同时期 Eo Wijers、NNAO 等竞赛活动也成为规划设计的推动力,使一批风景园林师有机会免于土地使用规划程序的束缚、在从前属于规划范围的尺度上主导项目并展开设计,也使得规划设计的目的不再仅限于实施而更重在吸引公众参与及政治讨论[1]。
规划设计与政治衔接时,遇到了多层级、多部门问题。当时欧洲政界权利分散,省级和市级政府变得独立,无法靠国家层面的空间政策解决所有尺度上的空间规划问题[1]。空间规划涉及多部门时,受各部门自身专业背景所限,常产生部门之间规划政策的矛盾冲突。实践中,规划师们需要重点思考如何将空间规划责任落实到各级政府,如何使各部门规划之间取得协调。
一方面,面对气候变化、城镇化发展等综合问题,荷兰需要更具科学性、可持续性及整合性的空间规划方法以调节空间利益冲突、满足社会各界的要求;另一方面,荷兰空间规划需要与各级政府及其众多部门实现衔接以得到落实。面对这些挑战,以当时一系列规划设计竞赛、研讨活动为契机,荷兰风景园林师给出了他们的方案——层模型法。
02 层模型法:跨学科的整合性规划方法
荷兰层模型法的雏形是 Hoog, Sijmons 和 Verschuuren 在 1996 至 1998 年间研究“大都市辩论”(Het Metropolitane Debat)时构建的分层模型[2]。为了突破当时规划缺乏整合性的局限,研究团队构建了一个区域尺度的分层模型,将空间规划拆解到三个“层”中并叠加。
三个“层”由下至上为基底层、网络层、人居层。基底层为土壤、水等自然要素,该层的任务主要是应对气候变化影响、实现水资源管理系统现代化;网络层即基础设施网络,任务包括提升交通流通性以提高荷兰在国际网络中的地位等;人居层即建成区域,任务是适应空间需求、进行适应于景观价值的减量发展。最后,以“时间”建立各层间的协同关系,进行层的叠加。Hoog 等人认为,下层的物质变化速率比上层的慢,因此下部的层会作为上部其它层的条件,应具有更高的优先级[2]。
在此后十余年中,分层模型在荷兰国家、省、市各层级的空间规划中得到应用推广(图 1)并发展为正式的规划方法,即层模型法[3]。
图 1 分层模型的早期应用:莱顿-哈勒姆-阿姆斯特丹
区域设计[4]
右下:水系规划——新的排水渠及中介池塘;
右中:基础设施规划——节点、公交网络和工作区;
右上:城市(红)与景观(绿)的相互作用—— 由“绿心”引导的住区及工业区布局。
(来源 H+N+S Landscape Architects. Plans. Sijmons D.=Landscape. Amsterdam: Architectura&Natura Press,2002)
2.1 层模型法的多学科理论基础
层模型法体现了要素分解、层进分析[5]、分层叠加、时空关联的概念,具有来自地理学、生态学、城市规划学等多学科的理论基础。
要素分解,即将空间构成要素分类解析。19 世纪,自然科学分化促使专题地图兴起,体现了提取单类要素进行空间分析的思维。至 20 世纪 60 年代初,地图学逐渐形成了一门用特殊的形象符号模型来表示和研究要素的空间分布、组合、相互关系及变化的系统科学[6]。随后,基于专题地图的 Mapping 被引入到规划学科中。
层进分析,即从二维到三维,从物理空间到社会空间的递进分析。相关理论多出自城市规划学。如 Trancik 的三种城市设计理论[7]反映出分析维度的递进;“社会空间模型”[8]、“空间流动理论”[9]、“网络城市模型”[10]及 Heeling 的城市设计模型[11],反映出从物理空间到社会空间的递进,对层模型法的后续发展有所启示。
分层叠加,即将已分层的要素叠加分析以研究其相互作用。分层原为科学领域的现象,如考古学中的文化层等。社会学家引用分层概念提出了“社会分层”[12]理论。60 年代末至 70 年代,美国景观生态学家 McHarg 的思想理论传入荷兰,他提出的“千层饼模型”[13]对层模型法的形成有较直接的影响。
时空关联,即通过物理要素变化的速率及其时间周期来建立各层间的协同关系。历史地理学中“时间周期”[14]概念对层模型法中讨论物质变化的逻辑具有重要启示。生态学及植物社会学家 Chris van Leeuwen 提出的“关系理论”[15]阐述了生境演化中的时空关联现象。受其影响,Sijmons 在 80 年代提出“框架概念”,Tjallingii 提出“双层网策略”,二者均可视为分层模型的前身[1]。
2.2 层模型法对多级政府和多部门规划问题的回应
在综合导向的国家层面空间规划中,层模型法有助于抓住问题的关键。Sijmons 指出,层模型法首先是作为“组织多项空间规划任务的策略”而存在的[2]。它明确了规划任务优先级:基底层优先于网络层,网络层优先于人居层。基于时间周期确定的层级关系根据相应的空间尺度级别映射到政府责任权属。为了在国家尺度保证一系列项目的整合性同时也保留地区特性,国家政府应在基底层和网络层采取最低限度的措施以应对主要挑战,为地方政府留出人居层的规划空间。
多部门规划在平衡各方利益上更胜一筹,但其需要良好的组织和衔接。在后期应用层模型法的实践中,许多市政部门忽略原始模型中的优先级制度而侧重于整合性[16]。得益于其多学科理论基础和严谨的概念框架,层模型法能良好协调各方利益及工作任务,对多学科、多部门的规划起到支撑作用。
03 层模型法规划设计思想及实践
荷兰当代风景园林规划设计实践中也蕴含着层模型法的思想,Dooren 将其总结为四句格言:1.尺度是设计的关键;2.有效即是美;3.设计是引导;4.景观是过程,过程即景观[17]。
3.1 空间:尺度是设计的关键
荷兰风景园林师认为通常被视为规划学工作对象的区域尺度场地也是风景园林设计对象。在层模型法的许多实践与研究中选择的空间尺度比区域尺度级别低得多[16]。Sijmons 则认为,只有在区域尺度上层模型法才能突出其优势[1]:将大尺度设计对象作为整体来理解,利于识别各层内部及各层间的矛盾冲突——即设计需要解决的问题。
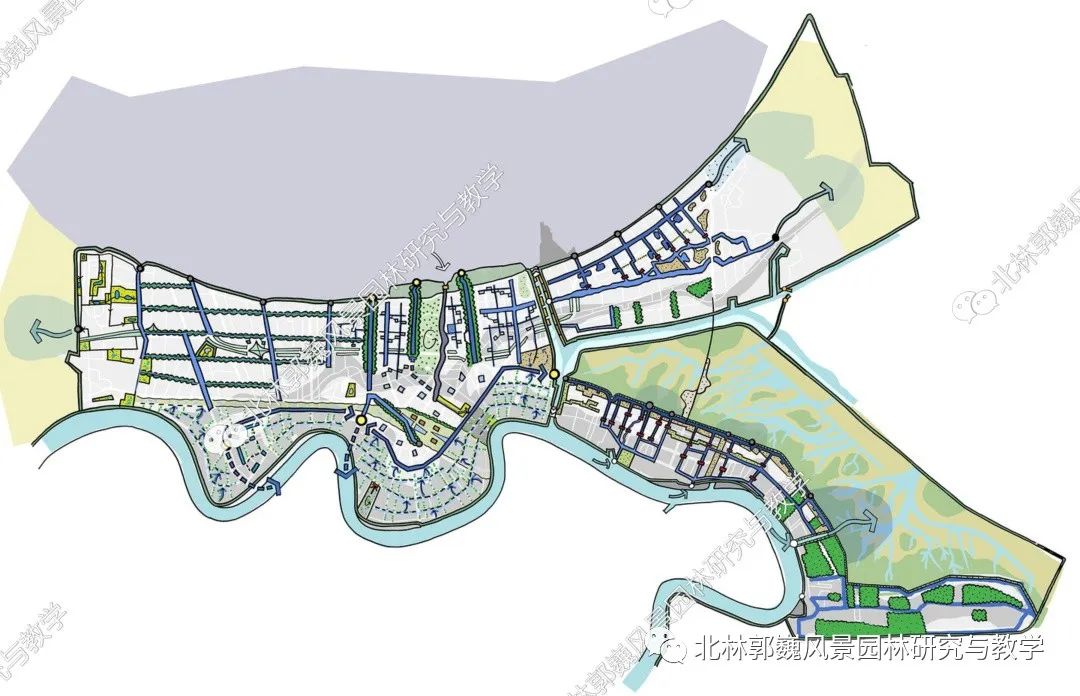
例如“保维尔水景观”(Watelsarlandschap Pauwels)[18],该项目着眼于基底层和网络层,以水、农业、自然和基础设施作为设计切入点。如何面对强降雨对城市的影响及长期干旱对农业、自然的挑战?如何以水处理流程建立蒂尔堡城市与其周边乡村、自然保护区的紧密联系?如何为一系列基础设施赋予景观价值、构建游憩网络?在区域尺度上,设计团队识别出这些关键问题并整合各个子系统(图 2,图 3,图 4)。
图 2 保维尔水景观规划总平面图
(来源 H+N+S Landscape Architects. STAD+BRON:Waterlandschap Pauwels. 2021)
图 3 以水处理流程联系城-乡-自然
(来源 H+N+S Landscape Architects. STAD+BRON:Waterlandschap Pauwels. 2021)
图 4 依托水处理基础设施节点构建游憩网络
(来源 H+N+S Landscape Architects. STAD+BRON:Waterlandschap Pauwels. 2021)
3.2 实用:有效即是美
荷兰风景园林师通常将功能性的基础设施视为景观中不可剥离一部分,并为其寻求景观化的最优解[19]。层模型法中,网络层包含交通网络、能源网络、绿色生态网络等一系列基础设施,联系着基底层和人居层。Dooren 认为,在设计师充分理解各层功能及其影响因素并具备优先级敏感度的前提下,如果景观能按设计师的预期发挥功能,它就会呈现出美——“美”不是设计的目的,而是自然而然产生的附加增益[17]。
在弗莱斯伦省面向 2050 年的能源转型研究中[20],太阳能、风能、生物质能、地热能等能源转化的过程潜在地将城镇和乡村联成整体。基于省内基底条件,设计师构建了四种能源模块(图 5),又根据城镇规模分别给出能源开发示例(图 6),在此基础上建立可再生能源网络(图 7)。能源转化自成景观层次,同时支持了乡村新型循环农业发展,为城镇中交通网络转型乃至街道空间品质改善提供了条件,形成更具吸引力的人文景观。
图 5 弗莱斯伦省四类自然基底及相应的能源模块
(来源 H+N+S Landscape Architects. ENERGIE+ATELIERS:Ateliers Energie en Ruimte Fryslan. 2017)
图 6 弗莱斯伦省城镇规模划分及相应的能源开发示例(来源 H+N+S Landscape Architects. ENERGIE+ATELIERS:Ateliers Energie en Ruimte Fryslan. 2017)
图 7 弗莱斯伦省能源转型研讨会总平面图
(来源 H+N+S Landscape Architects. ENERGIE+ATELIERS:Ateliers Energie en Ruimte Fryslan. 2017)
3.3 转化:设计是引导
De Hoog 等人构建分层模型时对当时普遍的蓝图式规划进行了批判[2]。如果以时空关联的思维看待空间规划,就不应以固定的结果为目标。Dooren 提出,成功的设计应当为自然过程与人类活动提供条件[17]。设计师应了解系统各层、各要素之间相互转化、相互作用的过程并作预测,以有限的干预激活、引导景观转化过程,由其自发性产生作用。
奈梅亨市的 I-Lent 项目[21]体现了设计的引导。瓦尔河经奈梅亨市处形成一道急弯,在高水位时成为瓶颈,奈梅亨市的城市化扩张还对瓦尔河系统造成了干扰。设计团队在基底层上迎合水文动态干预流程体系结构,通过北侧堤坝内移、新开分洪道,增大行洪截面同时保留原有村庄为河心岛。方案实施后可轻松应对 16000m³/s 的高峰排水需求,季节带来滨河景观的自然变化也为奈梅亨市民的滨水活动提供更丰富的机会(图 8)。
图 8 奈梅亨 I-Lent 项目平面图及分析
(来源 H+N+S Landscape Architects. RIVIERVERRUIMING+STADSPARK:I-lent,Ruimte Voor de Waal, Nijmegen. 2016)
3.4 协作:景观是过程,过程即景观
空间规划或区域设计应是跨学科的团队工作,层模型法可为其搭建整合性框架。而从区域及更大尺度上看,风景园林就是涉及自然、基础设施、城市等众多要素的综合问题。Dooren 认为,在空间规划跨学科团队中风景园林师们应重视并引领“规划设计过程”:研究关键问题,协调多方利益,搭建策略框架,提供备选方案——促使各方从整体上看待问题而不局限于自己的工作[17]。
为了应对海平面上升问题,H+N+S 事务所领导了“海岸品质工作室”(Atelier Kustkwaliteit)项目,聚焦于搭建各团体协商的平台[22]。通过与各方交流,风景园林师们确认了保障海岸安全的决定性因素及关键的自然过程,明确了各项措施改善海岸景观的作用机制。尤其是与当地合作方密切沟通保证了措施的在地性(图 9)。在此项目中,比起绘制规划图,建立框架、搭建协作平台是更为重要的环节(图 10,图 11)。
图 9 海岸品质工作室系列项目策略图
(来源 H+N+S Landscape Architects. KUSTVERSTERKING+RUIMTELIJKE KWALITEIT:Projectleiding Atelier Kustkwaliteit, Nederlands Kustgedied. 2013)
左图为“海岸周”研讨活动
右图为海岸品质工作室合作平台架构
(来源 H+N+S Landscape Architects. KUSTVERSTERKING+RUIMTELIJKE KWALITEIT:Projectleiding Atelier Kustkwaliteit, Nederlands Kustgedied. 2013)
04 层模型法的影响
层模型法在后续的研究和实践中产生了赋予权重、模型简化、时空维度调整、层数及内容调整等变体,其应用也从策略框架拓展到分析、指南、传播交流等方面[16],在荷兰国内及世界上其它地区都产生了不可忽视的影响。
4.1 荷兰国内的影响
世纪之交,层模型法对荷兰国内空间规划转型、多级政府责任权属分配、多部门规划协调等需求及问题给予回应,得到荷兰国家住房部、空间规划部和自然环境部的提倡。一方面,层模型法融合了荷兰传统人居环境营建智慧及优先级划分、时空关联等先进理念,帮助荷兰在国家层面从“与水争地”向“与自然共进”转变。另一方面,层模型法也是荷兰风景园林界参与空间规划、扩展学科可能性的重要探索。一定程度上,层模型法促进了荷兰空间规划结构及相关立法的调整,强化了风景园林规划设计与政府政策的衔接,其图解形式易被大众理解的特点,也为唤醒公众参与起到了重要作用[16]。
4.2 其它地区的影响
荷兰层模型法不仅适用于荷兰。2005 年新奥尔良遭受卡特里娜飓风袭击后,荷兰 H+N+S 事务所参与到该市的城市水系统规划中,应用层模型法识别关键问题,提出了海绵城市构想(图 12,图 13)[17][23]。日本 3·11 大地震灾后重建同样面临着多部门规划的挑战。日本方面与荷兰合作开展了“釜石智慧城市工作坊”,借助层模型法进行了鹈住居重建规划和釜石智慧社区总体规划[21]。其中鹈住居重建规划侧重于整合性,釜石智慧社区总体规划则侧重于过程性,突显了自下而上的公众参与对项目落实的推动作用。
图 12 新奥尔良水系统规划平面图
(来源 H+N+S Landscape Architects. SOLUTION+QUALITY BOOST:A Sustainable Water Strategy and New Urban Perspective for New Orleans. 2013)
图 13 新奥尔良水系统规划中的海绵城市策略
(来源 H+N+S Landscape Architects. SOLUTION+QUALITY BOOST:A Sustainable Water Strategy and New Urban Perspective for New Orleans. 2013)
层模型法的研究和实践向世界证明了风景园林学可以为改善人居生活质量作出超越传统范围的贡献。“重视规划设计过程”也得到各国规划设计行业认可,公众参与已成为大势所趋。如 Dooren 所言,不再把风景园林的问题视为单一维度的技术性任务而是将其视为引导性的转变过程,这是荷兰对面向 22 世纪的风景园林的主要贡献[17]。
05结语
较之荷兰,中国国土更辽阔,环境类型更多样、条件更复杂。荷兰层模型法产生于三角洲营建的特定背景,能否通用于任何时空尺度、地理环境暂无定论。但相关实践经验及其理念仍能带来许多启示。2018 年,自然资源部组建,“国土空间规划”成为重点议题。在此背景下,风景园林规划设计师应以整合性、过程性的思维看待问题,继承本国传统风景营建智慧,重视生态基底、蓝绿网络的规划建设,积极参与国土空间规划并发挥风景园林学科的优势。
作者简介:
参考文献:
[1]Sijmons D. Moved Movement. Groningen: Drukkerij Tienkamp, 2015.
[2]Hoog M D, Sijmons D, Verschuuren S. Herontwerp van het Laagland. in: D. H. Frieling (Ed.) Het Metropolitane Debat. Bussum, THOTH, 1998: 74-87.
[3]Van der Cammen H, De Klerk L. Ruimtelijke Ordening. Van Grachtengordel tot Vinexwijk.Utrecht: Het Spectrum.2003.
[4]H+N+S Landscape Architects. Plans. Sijmons D.=Landscape. Amsterdam: Architectura&Natura Press,2002.144~145.
[5]周正.城市形态图层分析体系研究:[学位论文].哈尔滨:哈尔滨工业大学,2019.
[6]李慧希. 基于地图术(Mapping)的景观建筑学理论研究:[学位论文].南京:东南大学,2016.
[7] Trancik, R. Finding Lost Space: Theories of Urban Design. Hoboken, NJ: John Wiley & Sons,1986.
[8] Lefebvre H. The Production of Space. Oxford: Blackwell Publishing, 1991.
[9] Castells M. The Information Age: Economy, Society and Culture. Vol 1: The Rise of the Network Society. Oxford: Blackwell Publishing, 1996.
[10] Dupuy G. Urban Networks—Network Urbanism. Techne Press, 2008.
[11] Heeling J, Meyer V J, Westrik J. De Kern van de Stedebouw in het perspectief van de 21ste eeuw. Dl. 1. Het Ontwerp van de Stadsplattegrond. Amsterdam: SUN Publishers, 2002.
[12] Park R E, Burgess W E. The City: Suggestions for Investigation of Human Behavior in the Urban Environment. Chicago: University Of Chicago Press, 1984.
[13] McHarg I L. Design with Nature. New York, NY: American Museum of Natural History, 1969.
[14] Braudel F. Histoire et Sciences Sociales: La longue durée. Annales Histoire Sciences Sociales, 1958, 13(4):725-753.
[16] Jeroen V S, Klaasen I. The Dutch Layers Approach to Spatial Planning and Design: A Fruitful Planning Tool or a Temporary Phenomenon?. European Planning Studies, 2011, 19(10): 1775-1796.
[17] Dooren N V. Gardening the Delta: A Dutch Approach to Landscape Architecture. Amersfoort, H+N+S Landscape Architects:2015-08.
[19] H+N+S Landscape Architects. The Programme Guide. Sijmons D.=Landscape. Amsterdam: Architectura&Natura Press,2002.11~22.
[24] Smart Work Week Kamaishi. The Dutch Approach in Japan.2013[2021-7-26]. http://venhoevencs.nl/wp-content/uploads/2013/07/Dutch-Approach-in-Japan_VenhoevenCS-web.pdf
本文发表于 2021 年风景园林年会论文集
客服
消息
收藏
下载
最近














